Low‑maintenance garden, driveway and adaptable living in Fairford.
Detached three/four-bedroom bungalow with flexible layout
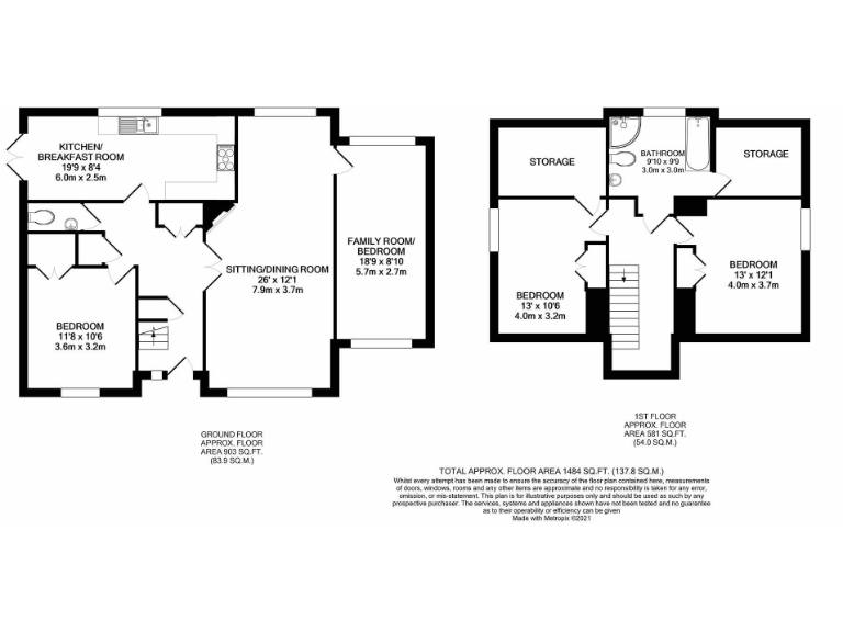
A flexible three/four-bedroom detached bungalow in Fairford, arranged mainly on the ground floor with two further bedrooms on a partial first floor. The principal sitting/dining room is generous, while the extended family room (or bedroom four) and kitchen/breakfast room provide comfortable everyday living. Outside offers off-street gravel parking and a low-maintenance rear garden with paved patio and artificial lawn.
This home suits downsizers who want mostly single-level living, families seeking adaptable accommodation, or buyers wanting a well-located property in a quiet Cotswold market town. Practical features include gas central heating with a Worcester boiler, double glazing, built-in wardrobes and useful eaves/storage cupboards. The plot is a decent size for the area and the property is freehold with Council Tax Band B.
Notable points to consider: the EPC is rated D and the cavity walls have no added insulation (as built), so improving energy efficiency would be sensible. Broadband speeds are slow locally, which may affect home-workers. Internally the property is well maintained but offers scope for modest modernisation to unlock additional value, particularly on bathrooms, kitchen details and thermal upgrades.
Fairford’s facilities — shops, weekly market, primary and secondary schools, riverside walks and nearby Cotswold Water Park — make this a convenient base for countryside living while remaining within reach of larger centres.
2 bedroom bungalow for sale in Horcott Road, Fairford, Gloucestershire, GL7 — £439,000 • 2 bed • 1 bath
2 bedroom terraced bungalow for sale in Wesson Place, Fairford, GL7 — £290,000 • 2 bed • 1 bath • 679 ft²
4 bedroom detached house for sale in Courtbrook, Fairford, Gloucestershire, GL7 — £560,000 • 4 bed • 2 bath • 1614 ft²
3 bedroom detached house for sale in London Road, Fairford, Gloucestershire, GL7 — £525,000 • 3 bed • 2 bath • 1443 ft²
4 bedroom detached house for sale in Jacobs Piece, Fairford, Gloucestershire, GL7 — £600,000 • 4 bed • 2 bath • 1188 ft²
4 bedroom detached house for sale in Fairford, Cirencester, GL7 — £595,000 • 4 bed • 3 bath • 1707 ft²






































