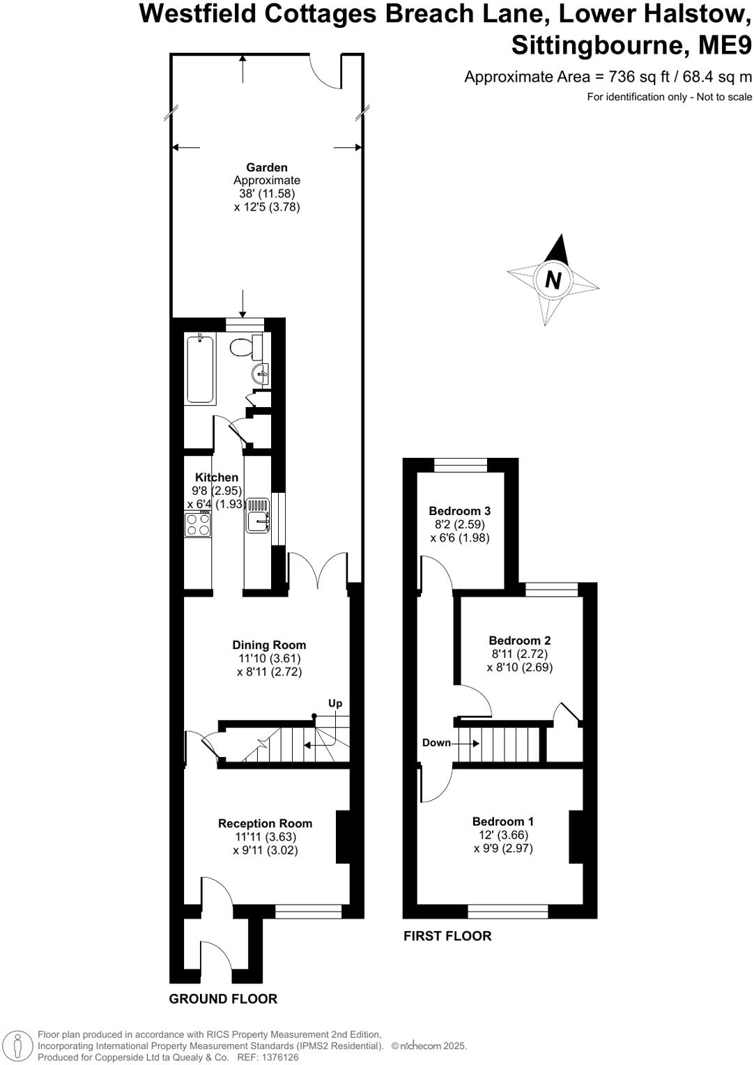
Three-bed period cottage with private parking and easy station access.
Three bedrooms: two doubles and one single with sloped-ceiling
This mid-terrace three-bedroom cottage sits in sought-after Lower Halstow and suits first-time buyers or young families seeking village life with easy commuting links. The house offers two reception rooms and an open-plan kitchen/diner that create flexible everyday living space. Two double bedrooms plus a single upstairs provide practical sleeping arrangements; one upper room has a sloped ceiling which reduces usable headroom.
Outside, parking is unusually generous for a village cottage: a small paved forecourt provides private off-street parking and there are two additional spaces available in a nearby residents’ car park (parish-managed). The rear garden is private but small, so outdoor maintenance is minimal — good for buyers wanting low-upkeep outside space rather than large grounds.
The property is freehold, sits in a low-crime, very affluent area with excellent mobile signal and fast broadband, and benefits from nearby primary and secondary schools rated Good. Newington and Rainham stations are a short drive, making commutes to London achievable.
Buyers should note the overall footprint is modest (approximately 736 sq ft) and accommodation is compact; there is a single bathroom only. The cottage is presented in good order internally but has the typical space limits of period terraced cottages, so investigate storage and future extension potential if more room is required.
3 bedroom semi-detached house for sale in Crouch Hill Court, Lower Halstow, Sittingbourne, Kent, ME9 — £400,000 • 3 bed • 1 bath • 1125 ft²
3 bedroom terraced house for sale in Sheppey Court, Halfway, ME12 — £300,000 • 3 bed • 1 bath • 508 ft²
4 bedroom semi-detached house for sale in The Green, Lower Halstow, Sittingbourne, Kent, ME9 — £425,000 • 4 bed • 2 bath • 840 ft²
3 bedroom house for sale in Cooling Common, Cliffe, Rochester, ME3 — £350,000 • 3 bed • 1 bath • 1077 ft²
2 bedroom terraced house for sale in Valentine Drive, High Halstow, Rochester, ME3 8BA, ME3 — £270,000 • 2 bed • 1 bath • 531 ft²
4 bedroom semi-detached house for sale in Burntwick Drive, Lower Halstow, Sittingbourne, Kent, ME9 — £350,000 • 4 bed • 1 bath • 1347 ft²






























































