Single-floor, low-maintenance bungalow with garage and conservatory in sought-after Exmouth location.
Semi‑detached 2-bedroom bungalow, single‑storey living
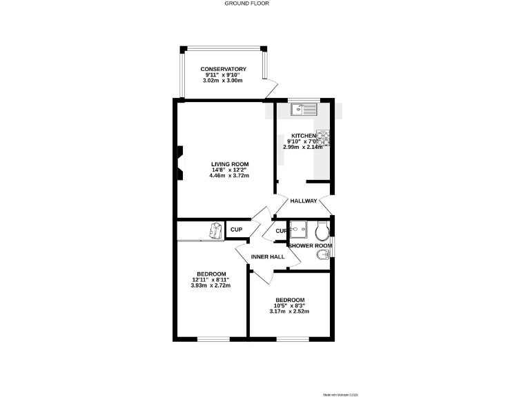
A compact, semi‑detached bungalow in a quiet Exmouth cul‑de‑sac, this two‑bed home suits buyers looking to downsize without losing outdoor space. The layout is straightforward: entrance, lounge, kitchen, two double bedrooms, shower room and a light-filled double‑glazed conservatory that extends the living area. A driveway and single garage provide off‑road parking and useful storage.
Set on a decent plot with a low‑maintenance rear garden and paved patio, the property offers easy outdoor upkeep and room for container gardening. The house dates from the late 1960s/early 1970s and displays mid‑century features; double glazing and solar panels are present, but the main heating is electric storage heaters, which can mean higher running costs compared with gas central heating.
At around 545 sq ft this is a small home best suited to single occupants, a couple or retirees seeking single‑floor living. The freehold tenure, very low local crime, excellent mobile signal and fast broadband make it practical for modern life. Local services are close by — bus stops and a post box within easy reach — and school provision in the area is mixed, so families should check specific catchments.
The bungalow is largely move‑in ready but, given its age, could benefit from updating to improve energy efficiency and modern comforts. Its size limits extension potential without major reconfiguration, but the garage and driveway are definite convenience gains for downsizers wanting space for a car and storage.
2 bedroom semi-detached bungalow for sale in Arthurs Close, Exmouth, EX8 4JZ, EX8 — £290,000 • 2 bed • 1 bath • 531 ft²
2 bedroom semi-detached bungalow for sale in Elmfield Crescent, Exmouth, Ex8 3BP, EX8 — £320,000 • 2 bed • 1 bath • 574 ft²
3 bedroom bungalow for sale in Brook Meadow, Exmouth, Devon, EX8 — £350,000 • 3 bed • 1 bath • 565 ft²
2 bedroom semi-detached bungalow for sale in Parkside Drive, Exmouth, EX8 4LD, EX8 — £260,000 • 2 bed • 1 bath • 840 ft²
1 bedroom bungalow for sale in Newlands Avenue, Exmouth, Devon, EX8 — £375,000 • 1 bed • 1 bath • 535 ft²
2 bedroom bungalow for sale in Bapton Close, Exmouth, Devon, EX8 — £330,000 • 2 bed • 1 bath • 761 ft²


































































