Modern riverside apartment near Canary Wharf and excellent transport links.
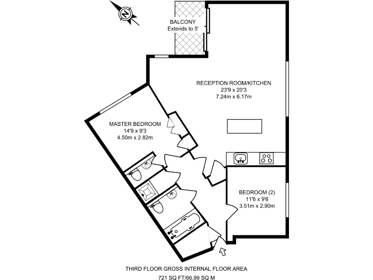
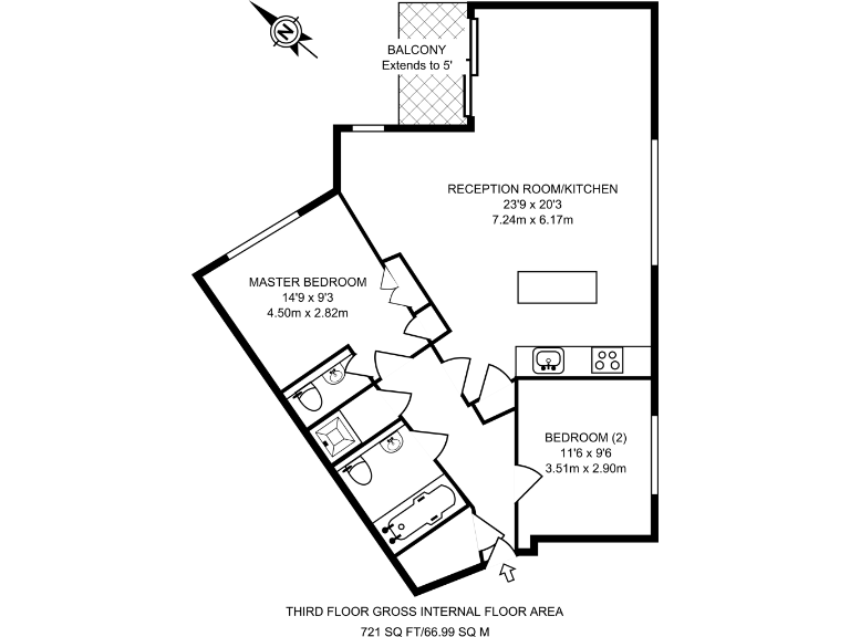
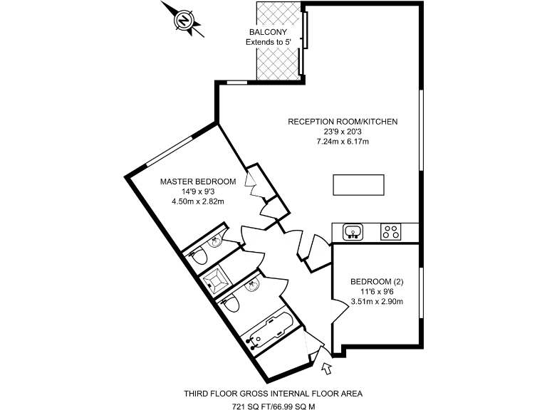
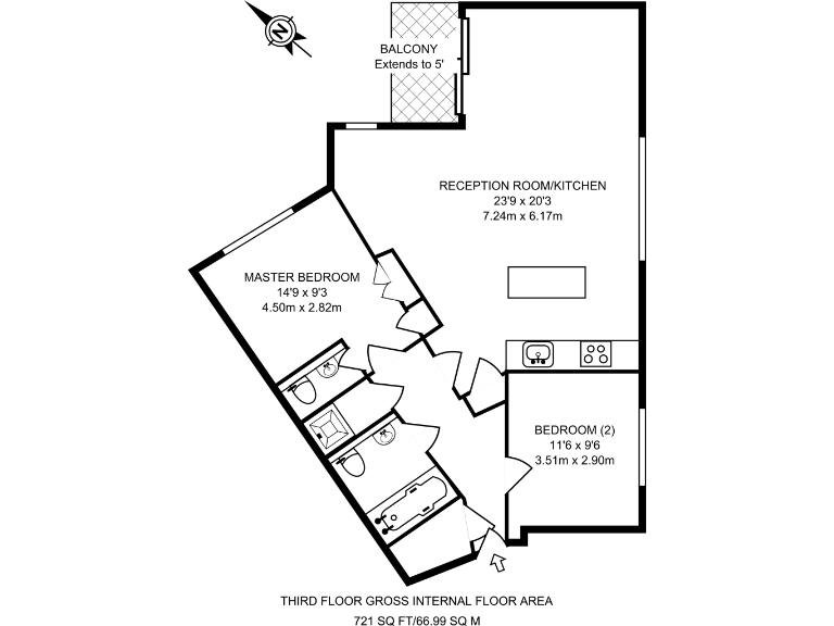
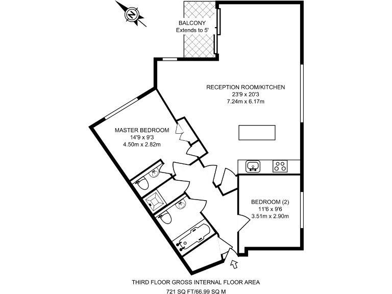
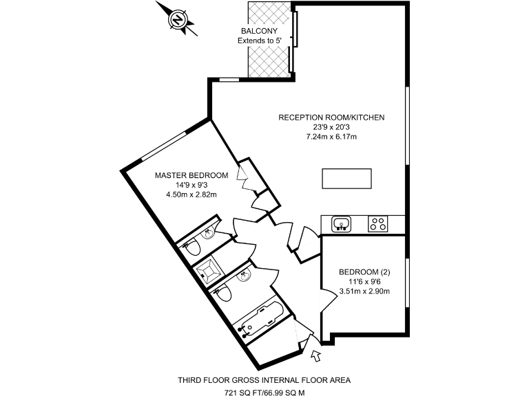
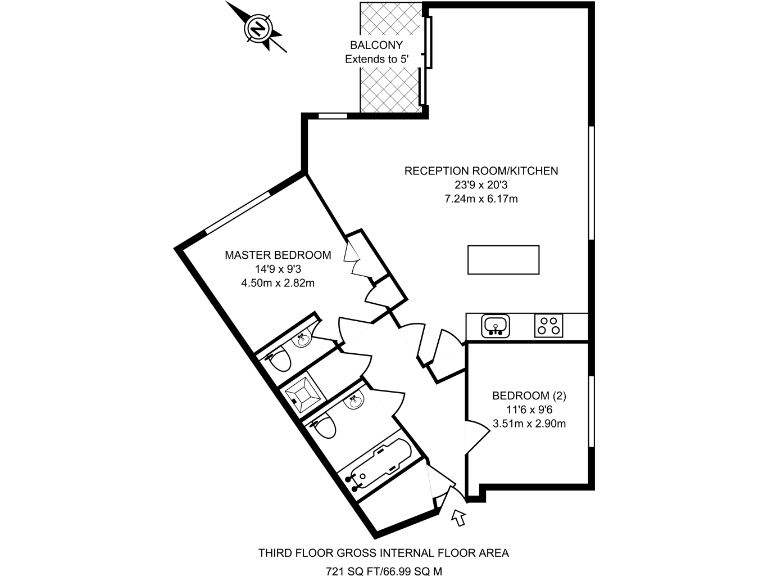
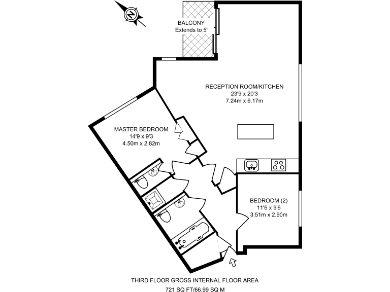
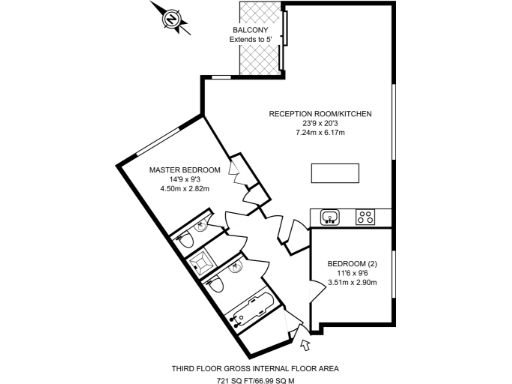
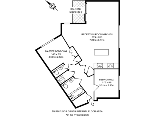
Two double bedrooms, two bathrooms, approx. 721 sq ft
Bright and contemporary, this two-bedroom apartment offers open-plan living and a private balcony with city views just moments from Canary Wharf. The reception room and smart fitted kitchen create an airy social heart, while two bathrooms add practical convenience for couples or sharers. At about 721 sq ft, the layout suits first-time buyers wanting a comfortable city base with scope for personal styling.
Built in the early 2000s and fitted with double glazing and electric underfloor heating, the property is low maintenance and ready to occupy. Transport links are excellent and local amenities — shops, cafes, restaurants and riverside green space — are all within easy walking distance, making daily life convenient and vibrant.
Practical considerations: the flat is leasehold, so buyers should confirm the lease length and service charges. Broadband speeds are average and the immediate area reports above-average crime statistics. Flooding risk is very low. These factual points balance the apartment’s strong location and modern finish for buyers who prioritise convenience and low upkeep.
2 bedroom flat for sale in West Point, Limehouse, London, E14 — £500,000 • 2 bed • 2 bath • 951 ft²
2 bedroom flat for sale in Turner House, E14, Isle Of Dogs, London, E14 — £475,000 • 2 bed • 2 bath • 704 ft²
2 bedroom flat for sale in Limeharbour, Canary Wharf, London, E14 — £450,000 • 2 bed • 2 bath • 759 ft²
2 bedroom apartment for sale in Antilles Bay Apartments, 3 Lawn House Close, Canary Wharf, E14 — £600,000 • 2 bed • 2 bath • 872 ft²
2 bedroom flat for sale in Millharbour, Canary Wharf, London, E14 — £475,000 • 2 bed • 2 bath • 712 ft²
2 bedroom flat for sale in Millharbour, E14, Canary Wharf, London, E14 — £450,000 • 2 bed • 1 bath • 595 ft²






















































































































































































































































































































































