Large, finished conversion with rural views and immediate occupancy.
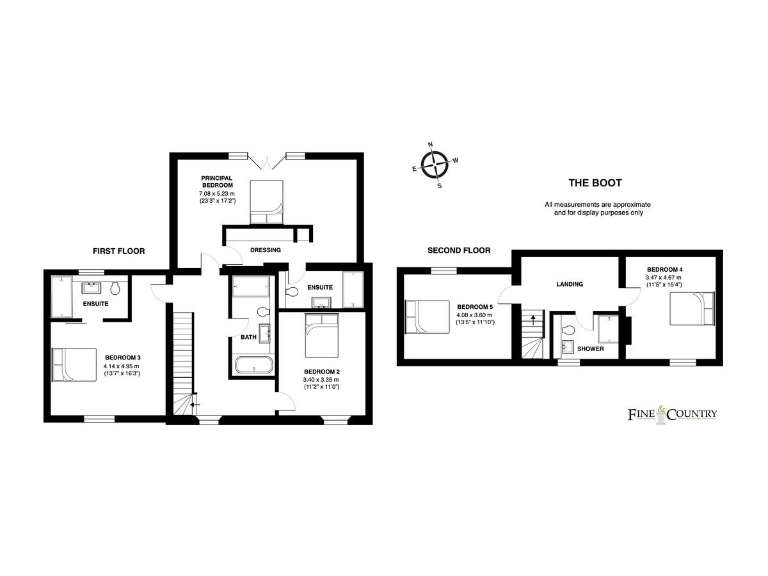
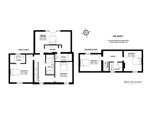
Five double bedrooms across three floors, principal suite with Juliet balcony
Ambury Stone Barn is a newly converted five-bedroom home created from an 1840s coaching inn, offering 3,078 sq ft of refined living across three floors. High-end fittings include bespoke Steven Brooker kitchen, Porcelanosa sanitaryware, engineered oak flooring and underfloor heating, while the principal suite opens via French doors to a Juliet balcony with uninterrupted countryside views. Practical features include extensive off-road parking, a carport with EV charging, a hardwired 4K security system and plentiful storage.
The layout suits family life and flexible living: an open-plan kitchen/dining/living area with bifold doors to a porcelain patio, a cosy sitting room with a wood-burning stove, a study with Cat7 cabling and two adaptable top-floor bedrooms ideal for guests or teenagers. The conversion retains Cotswold stone character and adds modern comforts such as triple glazing, full-fibre connection and pre-wired AV/data infrastructure.
Buyers should note material negatives up front. The property is in a High flood risk area, which may affect insurance and long-term resilience. Council tax is described as quite expensive. There is mixed information on broadband: the home is connected to Full Fibre Gigaclear, yet local data flags very slow speeds—prospective purchasers should verify live service performance with the provider.
Set in a tranquil hamlet between Witney and Oxford, the location combines rural privacy with commuter convenience via nearby Hanborough and Oxford Parkway. The house will suit families seeking space, quality finishes and countryside views, as well as buyers wanting immediate, chain-free occupation following a full conversion.
4 bedroom semi-detached house for sale in The Britannia, Barnard Gate, Witney Oxfordshire OX29 — £1,000,000 • 4 bed • 3 bath • 2561 ft²
5 bedroom barn conversion for sale in Pond Hill, Stonesfield, Witney, OX29 — £500,000 • 5 bed • 1 bath • 1295 ft²
2 bedroom barn conversion for sale in Wolsey Court, Woodstock, OX20 — £367,500 • 2 bed • 1 bath • 678 ft²
4 bedroom barn conversion for sale in Meadowbank Barn, Ascott-under-Wychwood, Chipping Norton, Oxfordshire, OX7 — £995,000 • 4 bed • 3 bath • 2261 ft²
5 bedroom barn conversion for sale in Fulbrook, Burford, Oxfordshire, OX18 — £995,000 • 5 bed • 2 bath • 2062 ft²
4 bedroom semi-detached house for sale in Main Road, Alvescot, OX18 — £1,250,000 • 4 bed • 3 bath • 3048 ft²






































































































































