Freehold investment with established tenants and flexible layout near central car park.
Freehold Georgian commercial building with period granite façade
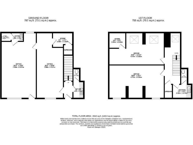
This freehold commercial building in Lion Yard offers a compact, flexible investment in the heart of Brecon. The property is currently split into two street-level shop/offices (left let at £6,000pa; right let at £10,236pa) with additional first-floor office space — partitions can be removed to create a larger single workspace. The attractive Georgian façade and granite construction give genuine period character while internal insulation and double glazing (install date unknown) improve thermal performance.
For an investor the property provides an immediate rental income stream and clear reconfiguration potential to increase value. Accommodation includes multiple kitchens, three cloakrooms and several stores, supporting a variety of occupier uses or simple adaptation to a single commercial unit. Proximity to the town centre car park and Brecon’s amenities makes the location convenient for local businesses and visitors to the Brecon Beacons National Park.
Buyers should note material considerations: the building dates from before 1900 and may need ongoing maintenance; main heating is electric via boiler and radiators. The area records high crime and very high deprivation scores, factors that may affect tenant demand and insurance costs. Broadband is average (mobile signal excellent) and the plot is small, limiting external expansion.
Overall this is a period property with scope for modest value-add through refurbishment or consolidation of the split units. It suits investors seeking a freehold commercial holding in a market-town centre location with immediate income and clear options for reconfiguration or lease-up improvements.
High street retail property for sale in 31 - 32 High Street, 31 - 32 High Street, Brecon, LD3 — £600,000 • 1 bed • 1 bath • 11090 ft²
High street retail property for sale in 19-20 High Street, Brecon, LD3 7AL, LD3 — £290,000 • 1 bed • 1 bath • 3480 ft²
Commercial property for sale in Castle Street, Brecon, LD3 — £70,000 • 1 bed • 1 bath • 611 ft²
Commercial property for sale in Church Lane, Brecon, LD3 — £100,000 • 1 bed • 1 bath • 470 ft²
4 bedroom mixed use property for sale in High Street, Brecon, LD3 — £390,000 • 4 bed • 3 bath • 1844 ft²
High street retail property for sale in Ship Street & 5 Wheat Street, Brecon, Powys., LD3 — £250,000 • 1 bed • 1 bath • 1286 ft²


































