Large income potential with flexible five to six-room layout near seafront.
Five/six bedrooms configured for high-occupancy lets or large family living.
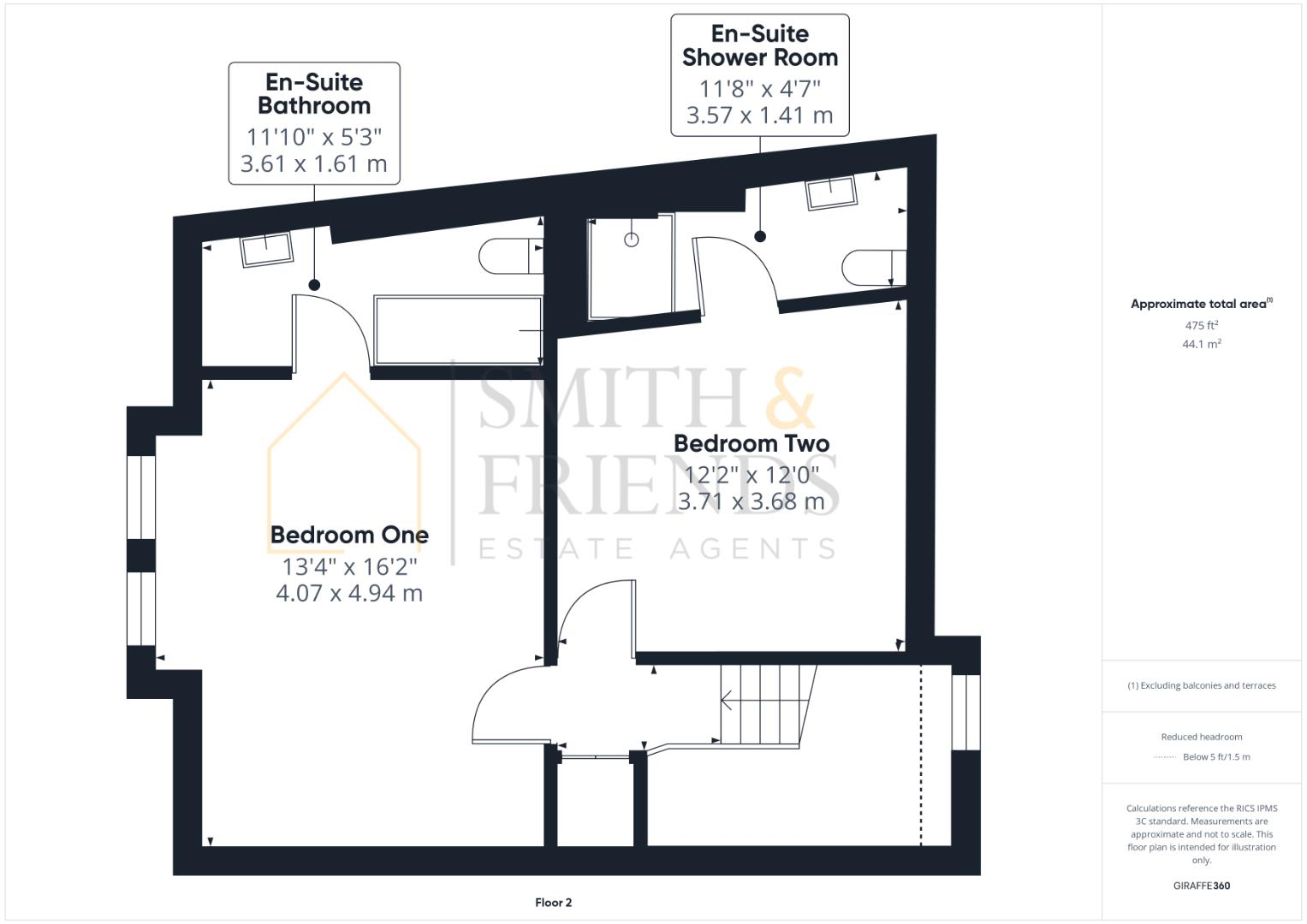
Six bathrooms including two top-floor en-suites — excellent for turnover/tenants.
Gas central heating, water boosting system, uPVC glazing and rear solar panels.
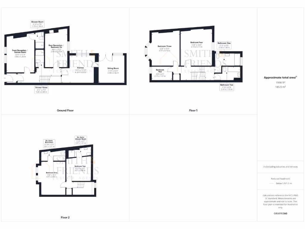
Substantial internal area circa 1,998 sq ft over three storeys plus dormer.
Leasehold tenure with 867 years remaining — long lease but not freehold.
Victorian solid-brick build (pre-1900) likely lacking external wall insulation.
Small palisaded front and rear courtyard only; no off-street parking.
Located in a deprived, blue-collar area — affects tenant mix and long-term growth.
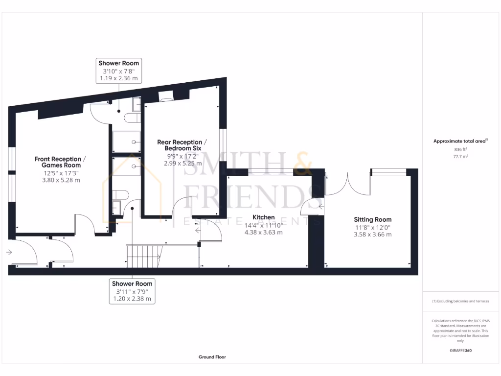
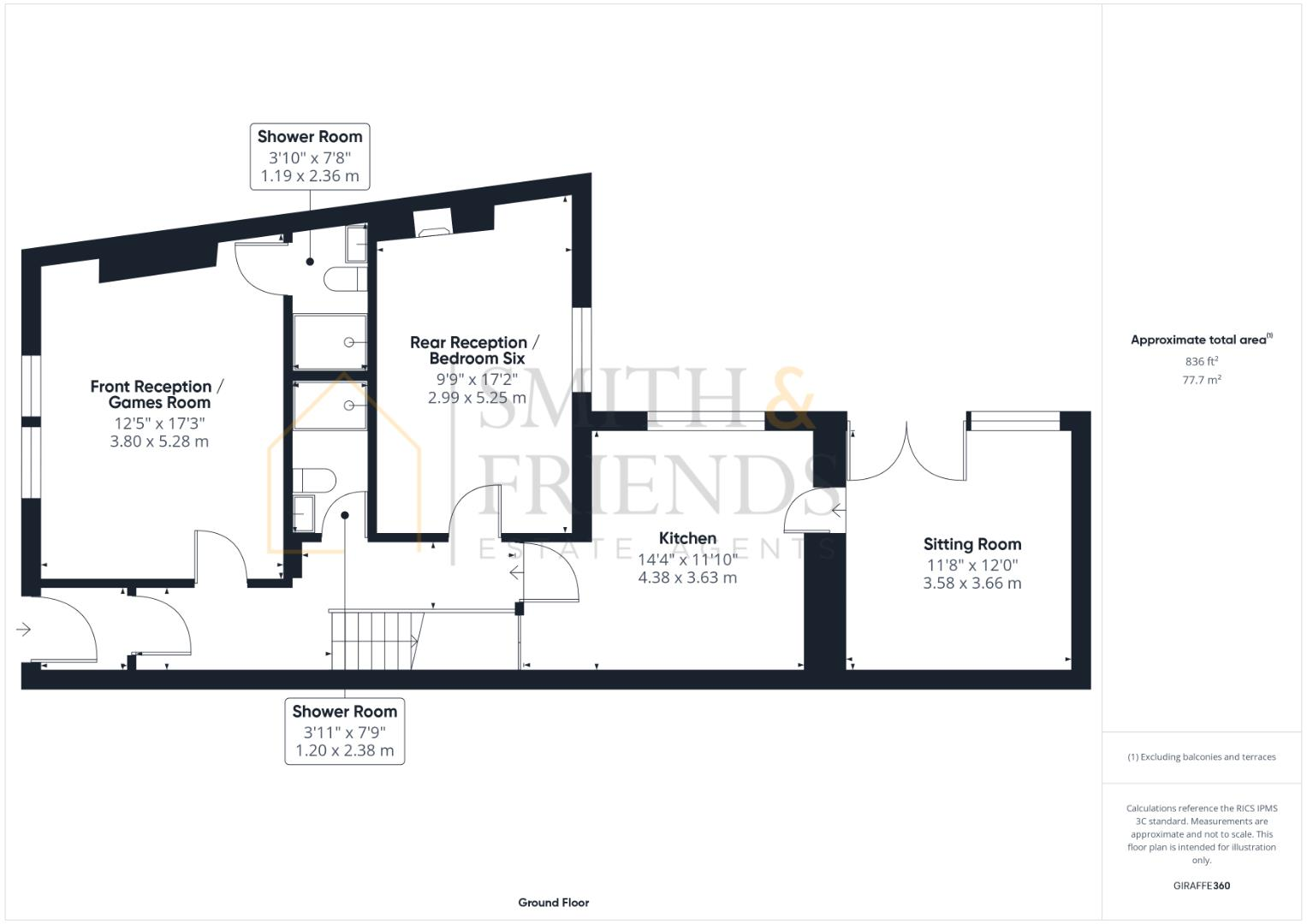
A rare, large end-terrace arranged over three main floors plus dormer space, this property offers up to six letting rooms and six modern bathrooms—configured for serviced or company lets. The combination of multiple reception areas and a substantial kitchen supports flexible occupancy, while en-suite facilities on the top-floor bedrooms increase rental appeal and evening turnover efficiency.
Practical features include gas central heating, a water boosting system for steady pressure, uPVC double glazing to most windows, and rear solar panels to help running costs. The property sits on Beaconsfield Square close to Headland seafront and local amenities, with quick links to transport and schools—useful for short-term contractor lets or a large family wanting separate living spaces.
Important considerations: the house is leasehold (867 years remaining) and located in an area described as deprived with blue-collar terraces, which may affect tenant profiles and long-term capital growth. The building is Victorian solid-brick construction (pre-1900) with no confirmed external wall insulation; some thermal and decorative upgrades could be needed to modernise and improve EPC performance.
Externally the plot is modest: small palisade frontage and a rear courtyard with paving and artificial turf — low maintenance but limited outdoor amenity and no off-street parking. Overall, the property presents strong immediate rental potential and scope for value-add refurbishment, but buyers should factor area profile and potential retrofit costs into purchase plans.
6 bedroom terraced house for sale in Henry Smith Terrace, Hartlepool, TS24 — £235,000 • 6 bed • 2 bath • 1571 ft²
5 bedroom terraced house for sale in Henry Smith Terrace, Hartlepool, TS24 — £275,000 • 5 bed • 3 bath • 3649 ft²
7 bedroom semi-detached house for sale in Westbourne Road, Hartlepool, TS25 — £450,000 • 7 bed • 5 bath • 2826 ft²
5 bedroom terraced house for sale in Northgate, Hartlepool, TS24 — £250,000 • 5 bed • 1 bath • 2821 ft²
5 bedroom terraced house for sale in Park Square, Hartlepool, TS26 — £190,000 • 5 bed • 2 bath • 1088 ft²
5 bedroom terraced house for sale in Avenue Road, Hartlepool, TS24 — £60,000 • 5 bed • 1 bath • 1852 ft²






































































































































































































































