**Standout Features:**
- Spacious detached home in a tranquil corner plot
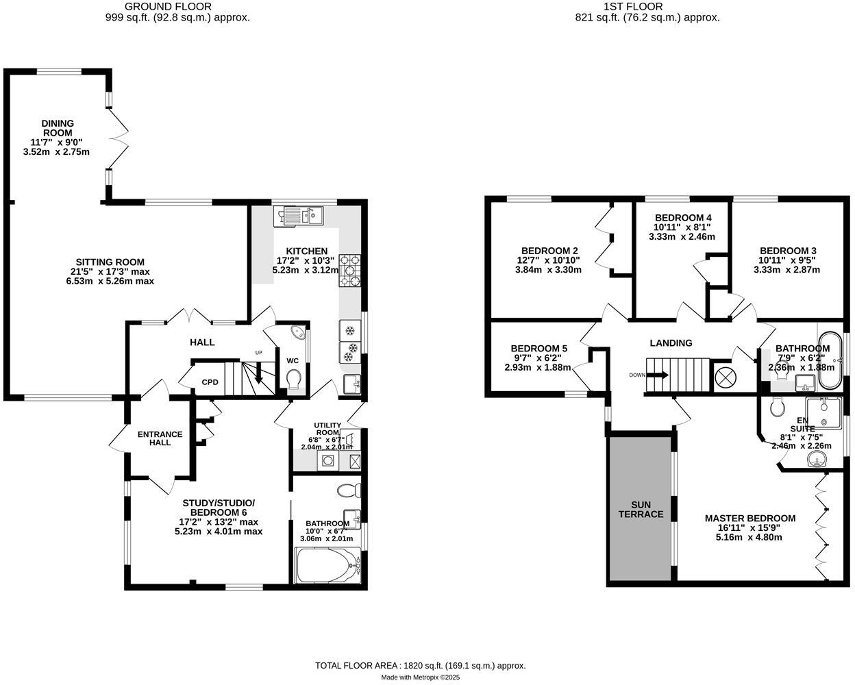
- 5 bedrooms, 3 bathrooms, including an en suite shower room
- Versatile living spaces, ideal for families or dependent relatives
- Charming garden with a summerhouse and off-street parking
- Located within a mile of mainline train services to London
**Concerns:**
- Leasehold tenure with 935 years remaining
- Restrictive covenants may limit property use
Discover your new family sanctuary in this remarkably spacious detached home situated in the sought-after area of Letchworth Garden City. Boasting five well-sized bedrooms and three bathrooms, this property offers flexible living with a potential annexe that can easily accommodate guests or extended family. The open-plan dining and L-shaped sitting rooms invite natural light, while the landscaped garden with a charming summerhouse provides a perfect retreat for leisure or entertaining.
Enjoy convenience with fast broadband and the serenity of a low-crime locale, all within a picturesque town known for its heritage and community feel. With a nominal ground rent of just £5 annually and ample off-street parking, this property combines comfort and practicality, making it ideal for professionals and families alike. However, as a leasehold property, be aware of the potential limitations imposed by restrictive covenants.
Seize this exceptional opportunity in a thriving area—properties like this don’t linger on the market for long!
3 bedroom semi-detached house for sale in Lordship Lane, Letchworth Garden City, SG6 — £575,000 • 3 bed • 2 bath • 1224 ft²
4 bedroom detached house for sale in Berkeley, Letchworth Garden City, SG6 — £785,000 • 4 bed • 2 bath • 1693 ft²
4 bedroom detached house for sale in Howard Gate, Letchworth Garden City, SG6 — £685,000 • 4 bed • 2 bath • 1701 ft²
3 bedroom semi-detached house for sale in Bedford Road, Letchworth Garden City, SG6 — £525,000 • 3 bed • 1 bath • 913 ft²
3 bedroom semi-detached house for sale in Station Way, Letchworth Garden City, SG6 — £525,000 • 3 bed • 1 bath • 935 ft²
3 bedroom semi-detached house for sale in Baldock Road, Letchworth Garden City, SG6 — £550,000 • 3 bed • 1 bath • 1201 ft²


























































































































