**Standout Features:**
- Attractive modern detached family home built in the early 1970s
- Impressive open-plan kitchen/dining area with bifold doors and skylight
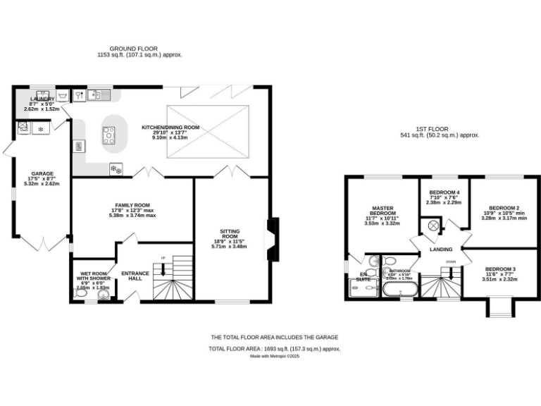
- Four bedrooms, including a master with en-suite, and two well-appointed bathrooms
- Secluded rear garden with diverse landscaping and entertaining spaces
- Garage and off-street parking available
- Located in an affluent, peaceful residential area
**Concerns:**
- Some potential maintenance needed for older double-glazed windows
- Higher council tax band (Band F), indicating potential ongoing expenses
Nestled in the desirable residential area of Letchworth Garden City, this stylish detached family home offers not just comfort but also the promise of a bright future. Spanning 1,693 square feet, its spacious layout includes a stunning kitchen/dining area that effortlessly merges indoor and outdoor living through large bifold doors, creating an inviting space for family gatherings. The property boasts four bedrooms, three of which are generously sized doubles, and features an en suite in the master, catering perfectly to family needs.
The outdoor space is a standout with a large, private garden designed for leisure and entertainment, complete with paved and lawned areas, as well as a charming gazebo. At present, there is an attached garage and ample off-street parking—ideal for families seeking convenience and accessibility.
Situated just three-quarters of a mile from the town center and close to excellent schools, this property exemplifies modern living in a tranquil environment with very low crime rates. While the home is well-maintained, buyers should be aware of the higher council tax implications. With fast broadband speeds and great transport links to London and Cambridge, this appealing property is a rare find—don’t miss your chance to make it yours!



















































































































