Two-bedroom new-build scheme with garage and parking near parks and transport.
Full planning permission granted by Royal Borough of Greenwich (Ref 22/3146/F)
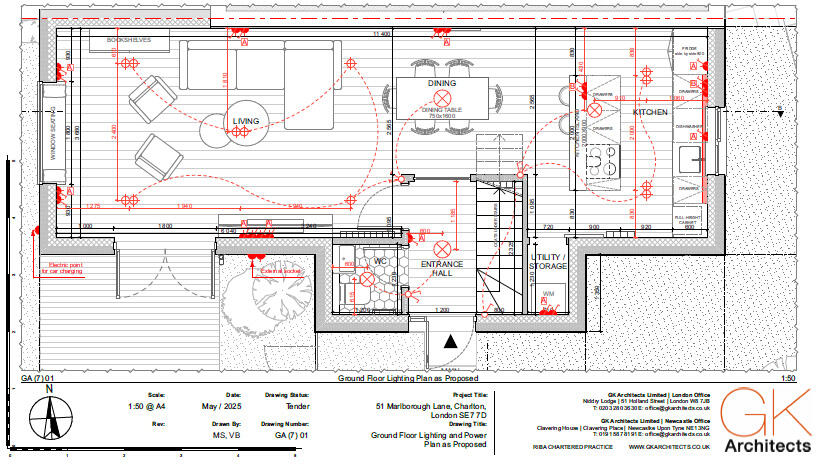
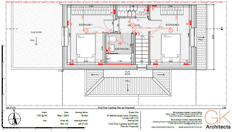
A rare corner development plot with full planning permission for a two-storey, two-bedroom end-of-terrace home. The approved scheme (Royal Borough of Greenwich Ref 22/3146/F, decision 17 Nov 2023) delivers about 76 sq m GIA across two floors with an additional loft room increasing quoted total to c. 81 sq m — buyers must verify areas and habitable status of the loft. The site sits on a 1930s residential street close to Charlton Park, local green spaces and good transport links (approx. 0.7 miles to Charlton station). The plot’s strengths are immediate: consented drawings, corner-plot prominence, detached garage and off-street parking. This lowers entry risk for a small-scale developer or investor aiming for a quick delivery or an owner-occupier planning a bespoke new build. The location benefits from nearby schools (including outstanding and good-rated primaries and secondaries) and fast local broadband and mobile signal. Important constraints are factual and should guide any offer. Conditions apply to the planning consent and buyers must satisfy those and perform their own due diligence. The house construction is typical 1930s solid-brick with assumed lack of cavity insulation; buyers should verify walls and services. The area records higher deprivation indices, council tax band is unknown and the approved loft’s GIA/habitability requires confirmation. Overall this is a compact, well-located infill opportunity: strong planning upside for a modest new-build terrace on a decent corner plot, but one that needs careful checks on conditions, technical surveys and local context before committing.
Residential development for sale in Land To The Side Of 33 Devonshire Road, Mottingham, London, SE9 — £410,000 • 1 bed • 1 bath • 2200 ft²
Land for sale in Winn Road, London, SE12 — £595,000 • 5 bed • 2 bath • 3070 ft²
Land for sale in Circus Street, Greenwich, London, SE10 — £450,000 • 2 bed • 1 bath • 792 ft²
Plot for sale in Francemary Road, London , SE4 — £399,950 • 1 bed • 1 bath
3 bedroom terraced house for sale in Woolwich Road, London, SE7 — £450,000 • 3 bed • 1 bath • 918 ft²
Land for sale in Alley land at, Crookston Road, London, London SE9 1YQ, SE9 — £250 • 1 bed • 1 bath • 1399 ft²


















