BN3 7NB - 3 bedroom semidetached house for sale in Nevill Avenue, Hov…

View on Property Piper

3 bedroom semi-detached house for sale in Nevill Avenue, Hove, BN3

Summary - 11 NEVILL AVENUE HOVE BN3 7NB

3 bed 1 bath Semi-Detached

Substantial semi with garage, parking and garden room near Hove Park.
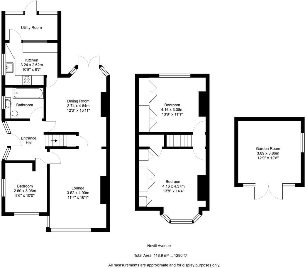
Three bedrooms across approximately 1,280 sq ft
Set on a desirable Hove street close to Hove Park, this substantial three-bedroom semi-detached home offers practical family space and useful outbuildings. The south-facing lounge flows into a dining room, creating bright, connected living spaces. A separate kitchen and utility room support everyday family life while the heated garden room provides a ready home office or play space.

Outside, generous off-street parking for multiple cars and a garage are rare local assets, and the rear garden is a good size with plenty of sun. The property occupies a sizeable plot and sits in a very affluent area with fast broadband, excellent mobile reception and a cluster of well-rated primary and secondary schools nearby.

The house is sold freehold and extends to about 1,280 sq ft. There is clear potential to enlarge the footprint by extending at ground, first and loft levels, subject to planning and building regulations—an appealing opportunity for buyers wanting to add value or reconfigure the layout.

Practical points to note: accommodation includes three bedrooms but only one bathroom, which may need adapting for larger families. Crime levels are average for the area. Prospective buyers should confirm any alteration plans with the local authority and budget for consented works if pursuing extensions.

Property Details

Brochure Descriptions

Image Descriptions

Rooms

Textual Property Features

Target Audience

AI Tags

Detected Visual Features

EPC Details

Nearby Schools

Nearest Bars And Restaurants

,,,,}

Nearest General Shops

,,}

Nearest Grocery shops

,,}

Nearest Supermarkets

,,}

Nearest Religious buildings

,,}

Nearest Medical buildings

,,,}

Nearest Leisure Facilities

,,,,}

Nearest Tourist attractions

,,}

Nearest Train stations

,,,,}

Nearest Bus stations and stops

,,,,}

Nearest Hotels

,,}

Tags

Local Market Stats

AirBnB Data

Similar Properties

Meta

High Res Images

Compatible Images

Low res Images

Thumbnails

Raw Images

High Res Floorplan Images

Compatible Floorplan Images

Low res Floorplan Images

FloorplanImages Thumbnail

Raw Floorplan Images