Convenient location near station park and schools.
Victorian brick-fronted mid-terrace with bay window
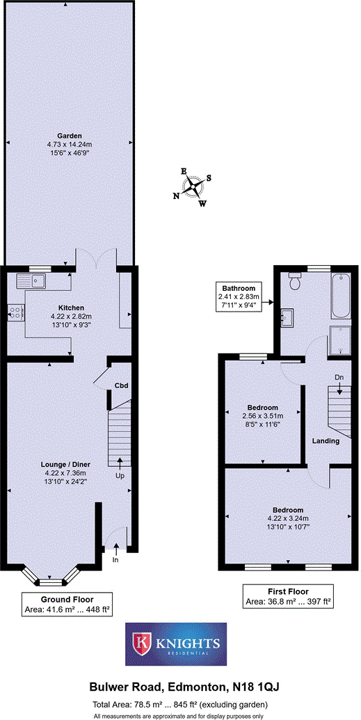
This brick-fronted Victorian mid-terrace offers a practical two-bedroom layout with 845 sqft of adaptable living space. The through lounge and extended kitchen give room to entertain, while a private rear garden provides outdoor space in a small, low-maintenance plot.
Located within walking distance of Silver Street station and close to Pymmes Park, the house suits first-time buyers seeking good transport links and nearby green space. Several well-rated primary and secondary schools, including The Latymer School, are within easy reach, and local amenities and fast broadband make day-to-day life straightforward.
The property is freehold and benefits from double glazing and gas central heating, but it has an EPC rating of D and the original solid brick walls are likely uninsulated. There is scope for energy-efficiency improvements and cosmetic updating to increase comfort and value. Overall, this is a sensible starter home with clear potential for buyers willing to invest in upgrades.
2 bedroom house for sale in Lopen Road, London, N18 — £450,000 • 2 bed • 2 bath • 1067 ft²
3 bedroom house for sale in Lopen Road, London, N18 — £375,000 • 3 bed • 1 bath • 927 ft²
2 bedroom house for sale in Hinton Road, London, N18 — £430,000 • 2 bed • 1 bath • 836 ft²
3 bedroom house for sale in Henley Road, London, N18 — £445,000 • 3 bed • 1 bath • 868 ft²
3 bedroom house for sale in Henley Road, London, N18 — £450,000 • 3 bed • 1 bath • 875 ft²
2 bedroom house for sale in Alston Road, Edmonton, N18 — £375,000 • 2 bed • 1 bath • 760 ft²










































































