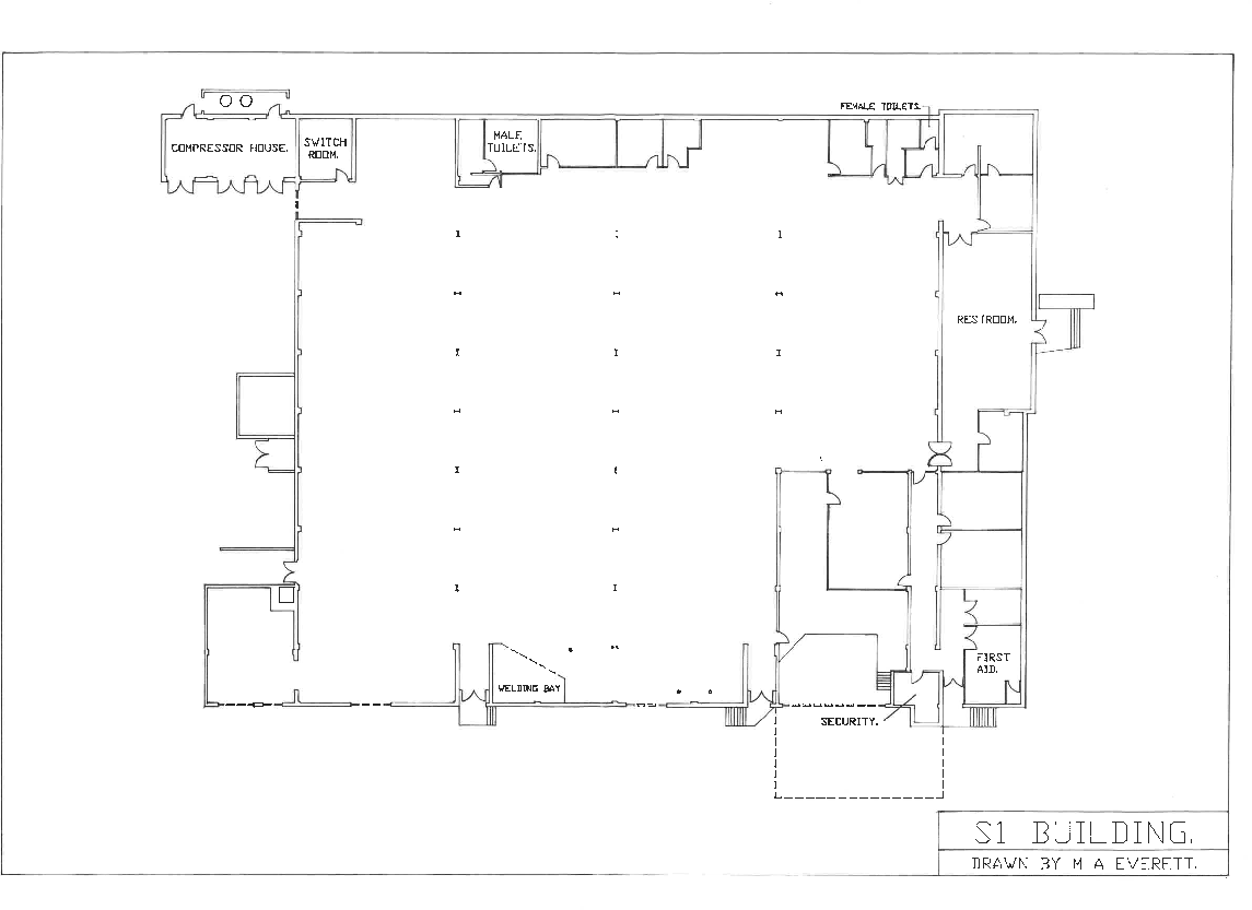
Prominent industrial unit with substantial yard and direct A127 access.
Approximately 26,853 sq ft single-storey warehouse
This substantial freehold warehouse on Progress Road offers an exceptional industrial footprint of approximately 26,853 sq ft with a prominent frontage in excess of 130 ft. The single-storey building provides open-plan warehousing with a maximum eaves height of about 4.5 m, front offices/reception, three-phase power, gas and mains water — practical for engineering, light manufacturing, storage or distribution uses.
Vehicle access is strong: side loading, additional rear loading with a secure yard (circa 4,727 sq ft), and off-street parking to the front. The site sits within an established industrial area with immediate access to the A127 and regional centres (around 4 miles west of Southend, 8 miles east of Basildon, and 16 miles from the M25), making it suitable for operators needing efficient road links.
The property has been long-used by an engineering business and will suit an owner-operator or investor seeking a large, standalone freehold industrial asset. The accommodation and services (WCs, office/reception) are in place, but interiors and yard may require refurbishment to suit a new operator’s specific layout, compliance needs or higher-spec fit-out.
As a major industrial unit offered at offers in excess of £2,000,000, purchasers should factor in typical commercial due diligence: condition surveys, any required remedial works, and planning or change-of-use checks for alternative occupiers. Flood risk is low and local area indicators show a comfortable, low-crime neighbourhood with good transport and commercial amenity nearby.
Warehouse for sale in 12 Faraday Road, Leigh-on-Sea, SS9 5JU, SS9 — £1,150,000 • 1 bed • 1 bath • 13175 ft²
Warehouse for sale in Unit 3 Airborne Industrial Estate, Southend Arterial Road, Leigh-on-Sea, Essex, SS9 — POA • 1 bed • 1 bath • 9416 ft²
Distribution warehouse for sale in 1 Brunel Road, Manor Trading Estate, Benfleet, SS7 4PS, SS7 — £600,000 • 1 bed • 1 bath • 3600 ft²
Warehouse for sale in Unit S4, 30 Progress Road, Leigh-On-Sea, SS9 5JU, SS9 — £950,000 • 1 bed • 1 bath • 20000 ft²
Light industrial facility for sale in Faraday Road, Leigh-on-Sea, SS9 — £1,150,000 • 1 bed • 1 bath • 13677 ft²
Light industrial facility for sale in P & A Hydraulics Ltd, Swaines Industrial Estate, Ashingdon Road, Rochford, Essex, SS4 — £515,000 • 1 bed • 1 bath • 4678 ft²














































