Compact two-bedroom terrace near transport links and local amenities.
Two allocated off-street parking bays included
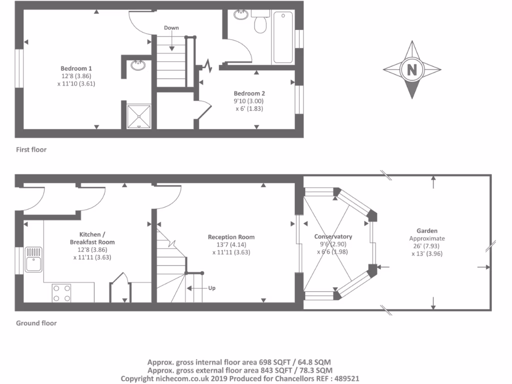
This modern two-bedroom mid-terrace is a compact, freehold starter home in Banbury, well suited to first-time buyers seeking easy access to town and transport links. The property offers two double bedrooms, a kitchen/diner, living room and a private rear garden — practical rooms for everyday living and simple entertaining.
Outside, two allocated off-street parking bays and a small garden add useful outdoor space and convenience for commuters; the M40 and Banbury train station are both close by. The house benefits from mains gas central heating, double glazing (install date unknown) and fast broadband with excellent mobile signal — practical features for working-from-home and modern life.
Size and setting are straightforward: about 635 sq ft with a small plot and an average overall footprint. The wider area shows some local deprivation and average crime levels; buyers should weigh resale potential against the town-centre convenience and popular local schools. Flood risk is very low and council tax is described as cheap.
This home presents sensible value for a first purchase or an investment let: solid, low-maintenance construction from the 1983–1990 era with scope for cosmetic updating. Buyers wanting larger gardens, significant internal rearrangement or more privacy should consider the modest room sizes and mid-terrace location before viewing.
2 bedroom terraced house for sale in Glyndebourne Gardens, Banbury, OX16 — £215,000 • 2 bed • 1 bath • 602 ft²
2 bedroom end of terrace house for sale in Parklands, Banbury, OX16 — £230,000 • 2 bed • 1 bath • 612 ft²
3 bedroom terraced house for sale in Red Poll Close, Banbury, OX16 — £245,000 • 3 bed • 1 bath
2 bedroom terraced house for sale in Banbury, Oxfordshire, OX16 — £240,000 • 2 bed • 1 bath • 871 ft²
2 bedroom terraced house for sale in Delapre Drive, Banbury - NO ONWARD CHAIN, OX16 — £240,000 • 2 bed • 1 bath • 691 ft²
2 bedroom terraced house for sale in Winchelsea Close, Banbury, OX16 — £230,000 • 2 bed • 1 bath • 700 ft²














































