M20 6RF - 3 bedroom terraced house for sale in Albert Hill Street, Di…

View on Property Piper

3 bedroom terraced house for sale in Albert Hill Street, Didsbury, M20

Summary - 11 ALBERT HILL STREET MANCHESTER M20 6RF

3 bed 1 bath Terraced

**Standout Features:**
- **Location:** Centrally located in Didsbury Village, providing easy access to local amenities and transport links.
- **Stylish Design:** Immaculately renovated period terrace over three floors with an open-plan layout.
- **Living Space:** Bright bay fronted living/dining area with French doors to the courtyard garden.
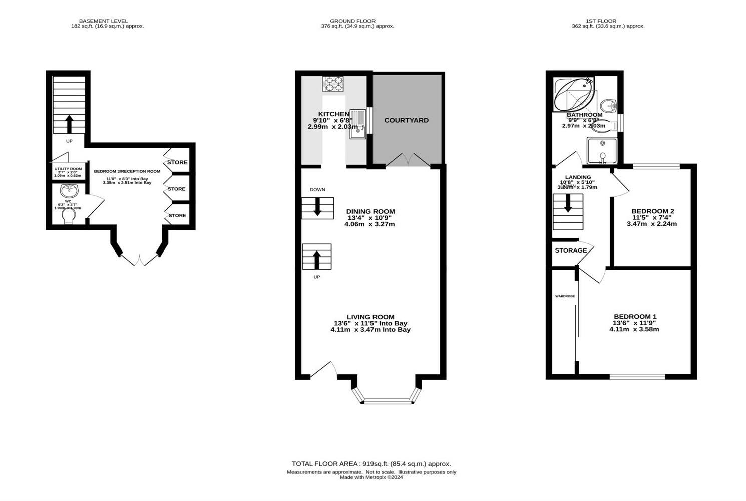
- **Bedrooms:** Three good-sized double bedrooms; lower ground floor room currently serves as a home office.
- **Outdoor Space:** South-facing courtyard garden offering a private retreat.

**Summary:**
Discover this stunning three-bedroom terraced house on Albert Hill Street in the heart of Didsbury Village, perfect for families and professionals alike. Recently renovated, this stylish home boasts immaculate accommodation spread over three levels, featuring a sunlit open-plan living and dining area served by French doors leading to a charming south-facing courtyard garden. The modern kitchen is equipped with integrated appliances, ideal for culinary enthusiasts.

The property offers three generously sized double bedrooms, including one on the versatile lower ground floor with en-suite WC, perfect for use as an office or guest suite. With a contemporary four-piece bathroom suite and essential features such as new underfloor heating, the home balances modern comforts with period charm.

While the exterior presents the allure of traditional brickwork and a welcoming front garden, it's important to note that the property’s size and outdoor space are best suited for those prioritizing location and community over extensive grounds. With excellent transport links and a vibrant neighborhood full of cafes, shops, and schools—including highly-rated primary and secondary institutions—this property is a unique find in a desirable area. Don’t miss your chance to make this charming home yours!

Property Details

Brochure Descriptions

Image Descriptions

Floorplan Description

Rooms

Textual Property Features

Detected Visual Features

EPC Details

Nearby Schools

Nearest Bars And Restaurants

,,,,}

Nearest General Shops

,,}

Nearest Grocery shops

,,}

Nearest Supermarkets

,,}

Nearest Religious buildings

,,}

Nearest Medical buildings

,,,}

Nearest Airports

}

Nearest Leisure Facilities

,,,,}

Nearest Tourist attractions

,,}

Nearest Train stations

,,,,}

Nearest Bus stations and stops

,,,,}

Nearest Hotels

,,}

Tags

Local Market Stats

AirBnB Data

Similar Properties

Meta

High Res Images

Compatible Images

Low res Images

Thumbnails

Raw Images

High Res Floorplan Images

Compatible Floorplan Images

Low res Floorplan Images

FloorplanImages Thumbnail

Raw Floorplan Images