Character-filled three-bedroom on a gated estate with sizable garden and parking.
Grade II listed almshouse with strong period character
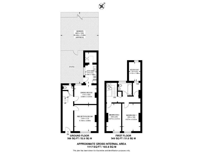
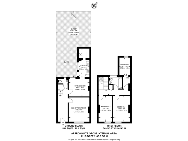
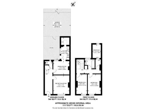
Set within the gated King William IV Gardens estate, this unique Grade II listed three-bedroom almshouse combines historic character with practical family living. High ceilings, period fireplaces and large sash windows create roomy, light-filled living spaces, while a separate dining room and smart fitted kitchen suit everyday life and entertaining. The property includes a secluded courtyard and a substantial private garden — rare for an inner-city terrace — plus residents’ off-street parking.
Practical ownership features include a long lease (156 years) and share of freehold, with a service charge of around £1,500. The listed status preserves the building’s historic fabric but will restrict alterations and could add complexity and cost to maintenance or refurbishment. The house has one bathroom and solid brick walls (likely uninsulated), so buyers expecting modern thermal performance may want to budget for sympathetic upgrades that comply with listing rules.
Positioned for commuters and young families, the estate sits close to Crystal Palace and Penge amenities and nearby stations for central London access. Several well-rated primary and secondary schools are within easy reach, including outstanding secondaries, making this an attractive option for families. Broadband speeds are average; mobile signal is excellent.
This property will appeal to buyers who value heritage and outdoor space over turnkey modernity. It offers strong character, sizable rooms and a rare garden in a leafy, village-like estate — but prospective purchasers should plan for listed-building constraints, a single bathroom, and ongoing conservation-minded maintenance.
2 bedroom end of terrace house for sale in High Street, London, SE20 — £400,000 • 2 bed • 1 bath • 797 ft²
2 bedroom terraced house for sale in High Street, London, SE20 — £435,000 • 2 bed • 1 bath • 861 ft²
2 bedroom terraced house for sale in High Street, London, SE20 — £450,000 • 2 bed • 1 bath • 797 ft²
1 bedroom flat for sale in Goldsmith Buildings,East Churchfield Road, London, W3 — £425,000 • 1 bed • 1 bath • 538 ft²
3 bedroom terraced house for sale in Kingswood Road, Penge, London, SE20 — £850,000 • 3 bed • 1 bath • 1185 ft²
3 bedroom house for sale in Sydenham Road, Sydenham, SE26 — £850,000 • 3 bed • 1 bath • 1176 ft²


















































































































































































