Large family plot with woodland, garage and scope to personalise.
Five double bedrooms across three floors, including en-suite master
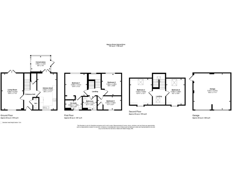
Set in a quiet cul-de-sac within a semi-rural development, this modern five-double-bedroom home is laid out over three floors for flexible family living. The bright front-to-back living room, generous kitchen/diner and a conservatory give easy daily flow, while the en-suite master and two further double bedrooms on the first floor suit parents and children. Two large double rooms on the top floor and a useful landing make space for teenagers, guests or a study corner.
Outside, the plot feels considerably larger than average for the development. A private, manageable rear garden with patio and lawn sits alongside a brick-paved driveway and a detached double garage with power and lighting. The garage presents clear scope for conversion to an annexe, studio or home office, subject to planning consent. Residents also benefit from communal woodland, a children’s play area and a hireable residents’ hall that links directly onto Chailey Common and local countryside walks.
Practical points are straightforward: the house is freehold, energy efficient, gas‑heated with double glazing, and was built between 2007–2011. There is a modest annual estate charge of £500 for upkeep of communal areas. Any further adaptations (garage conversion, loft shower room) will require appropriate permissions and, while the property is well presented, buyers should allow for usual ongoing maintenance.
This home suits families who want space, good local schools and countryside on the doorstep while staying within easy reach of nearby towns and the Bluebell Railway. It offers ready-to-live-in accommodation plus sensible scope to personalise or extend with planning approval.
5 bedroom detached house for sale in New Heritage Way, North Chailey, BN8 — £595,000 • 5 bed • 2 bath • 1461 ft²
5 bedroom detached house for sale in New Heritage Way, North Chailey, Lewes, East Sussex, BN8 — £775,000 • 5 bed • 3 bath • 1996 ft²
5 bedroom detached house for sale in Southern View, Haywards Heath, RH16 — £1,100,000 • 5 bed • 4 bath • 3446 ft²
3 bedroom detached house for sale in Hazeldene Lane, North Chailey, Lewes, BN8 — £950,000 • 3 bed • 3 bath • 2166 ft²
5 bedroom detached house for sale in Norlington Court, Ringmer, BN8 — £950,000 • 5 bed • 3 bath • 2520 ft²
4 bedroom house for sale in Old House Lane, Haywards Heath, RH16 — £875,000 • 4 bed • 3 bath • 1921 ft²














































































































