Spacious plot, south garden and excellent schools — needs modernisation throughout.
Three-bedroom detached home in peaceful cul-de-sac
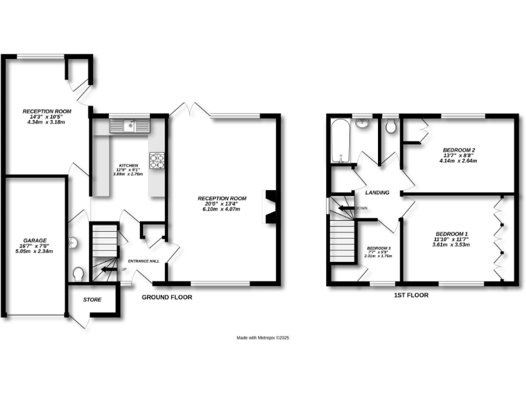
Set at the end of a peaceful cul-de-sac, this three-bedroom detached house sits within easy walking distance of Hook village centre, schools and the mainline station with direct services to London Waterloo. The layout includes a dual-aspect living room, a versatile ground-floor room with garden access, and a south-facing rear garden that catches the afternoon sun.
The property offers clear scope to modernise and personalise: two good-size double bedrooms, a single bedroom, downstairs cloakroom, separate toilet and an extended ground-floor area that could be a dining room, study or ground-floor bedroom. The plot includes a driveway, single garage and useful external store, giving practical storage and parking.
Important practical points: the house needs renovation throughout, cavity walls are un-insulated (assumed), and the EPC rating is D (65). There is only one bathroom and a separate WC. Local crime levels are reported above average, which may concern some buyers. Heating is mains gas with a recently fitted boiler in the extension cupboard.
For a family seeking space near good schools and fast rail links, or for a buyer wanting a renovation project with scope to extend (STPP), this home presents strong potential. The generous south-facing garden and substantial plot offer clear opportunity to create a comfortable, updated family home.
3 bedroom link detached house for sale in Beechcrest View, Hook, Hampshire, RG27 — £475,000 • 3 bed • 1 bath • 727 ft²
3 bedroom semi-detached house for sale in Garden Close, Hook, Hampshire, RG27 — £450,000 • 3 bed • 1 bath • 791 ft²
4 bedroom detached house for sale in Hornbeam Place, Hook, Hampshire, RG27 — £600,000 • 4 bed • 2 bath • 1170 ft²
3 bedroom terraced house for sale in Compass Field, Hook, Hampshire, RG27 — £375,000 • 3 bed • 1 bath • 762 ft²
5 bedroom link detached house for sale in Butts Meadow, Hook, Hampshire, RG27 — £650,000 • 5 bed • 3 bath • 1485 ft²
3 bedroom bungalow for sale in London Road, Hook, Hampshire, RG27 — £550,000 • 3 bed • 2 bath • 1077 ft²


























































