Three-bedroom, move-in ready home near top-rated schools.
Private cul-de-sac location with secluded rear garden
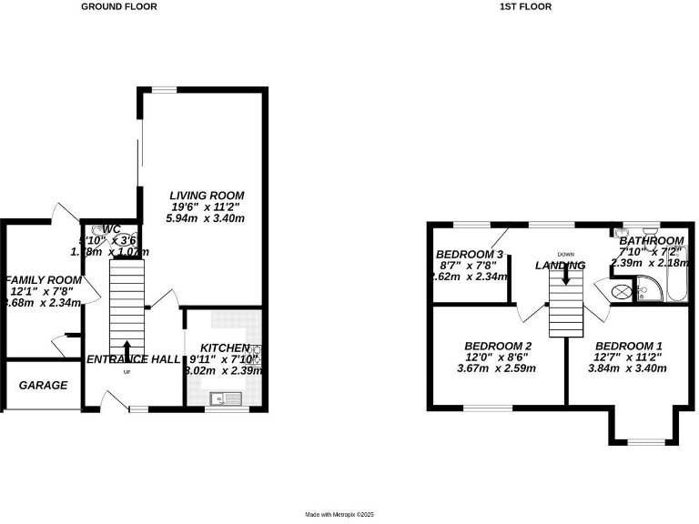
Quietly tucked on a private cul-de-sac on Hook’s northern side, this three-bedroom semi offers comfortable family living in a well-regarded suburb. The layout provides a spacious living room plus a second reception room that works well as dining, play or home-office space. The rear garden is private and of a decent size for outdoor play and entertaining.
Practical features include a generous driveway, integral garage and room for multiple cars, plus double glazing and mains gas central heating for year-round comfort. The property was built in the 1980s and presents as move-in ready, so a buyer can settle in quickly and make incremental updates over time.
Location is a strong asset: Hook Junior and Infant Schools are nearby (both rated Outstanding), and secondary and independent schools are within easy reach. The area is very low crime, very affluent and benefits from fast broadband — useful for home working and family life.
Be aware this is a modestly sized home (approximately 791 sq ft) with a single family bathroom plus cloakroom, which may feel tight for larger families during busy periods. Energy efficiency is average (EPC D, 65), so upgrading insulation or heating could reduce running costs. Overall, this freehold, traditional-layout property will suit buyers seeking a well-located, practical family home with scope to personalise.
3 bedroom semi-detached house for sale in Titchener Way, Hook, Hampshire, RG27 — £465,000 • 3 bed • 2 bath • 506 ft²
3 bedroom link detached house for sale in Beechcrest View, Hook, Hampshire, RG27 — £475,000 • 3 bed • 1 bath • 727 ft²
3 bedroom terraced house for sale in Compass Field, Hook, Hampshire, RG27 — £375,000 • 3 bed • 1 bath • 762 ft²
4 bedroom link detached house for sale in Hornbeam Place, Hook, Hampshire, RG27 — £550,000 • 4 bed • 2 bath • 1154 ft²
3 bedroom link detached house for sale in Garden Close, Hook, Hampshire, RG27 — £499,950 • 3 bed • 1 bath • 920 ft²
3 bedroom semi-detached house for sale in Hop Garden Road, Hook, Hampshire, RG27 — £480,000 • 3 bed • 1 bath • 863 ft²










































