High‑ceilinged country home with gardens, parking and fast fibre near station and school.
Double‑height open plan living with bi‑folds to terrace and garden
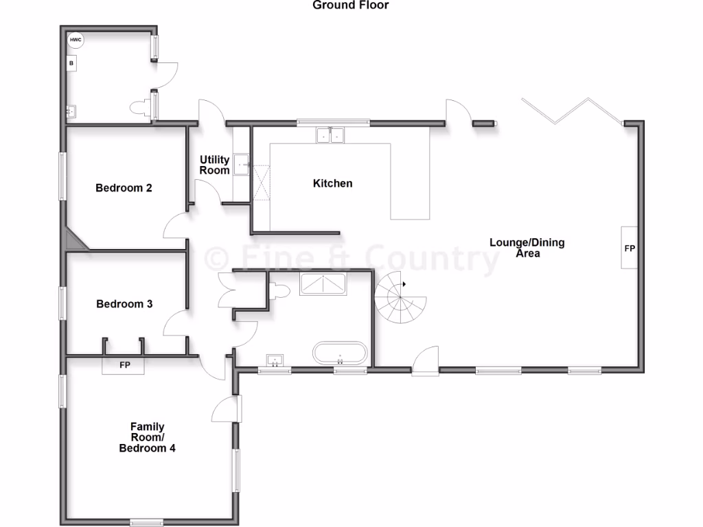
Set in the High Weald AONB, this stylishly converted stable offers classic character with contemporary comfort for family life. The house centres on a spectacular double‑height kitchen/dining/living room with exposed timbers, a spiral staircase and five bi-fold doors opening onto terrace and garden — ideal for entertaining and daily family flow. High-spec updates include underfloor heating, CAT‑5 wiring and fast fibre broadband for modern working and leisure.
The principal suite occupies the mezzanine galleried level, benefitting from vaulted ceilings, conservation rooflights, dressing room and a large en‑suite; three further bedrooms and a generous family bathroom suit children or guests. Outside, a wide slate terrace, large lawn, mature planting and a sheltered ‘secret’ garden back onto open fields; generous off‑street parking and scope to add a garage or home office via existing underground cabling.
Practical points are straightforward: the property is newly renovated and ready to occupy, but it runs on LPG for heating (not a communal supply) and sits in a higher council tax band. Buyers should confirm planning/building‑regulation records for the prior conversion. For families seeking rural peace without losing conveniences, the house’s walking distance to a mainline station, an outstanding secondary school, local pub and supermarket gives a rare blend of country seclusion and everyday accessibility.
3 bedroom barn conversion for sale in Cuckoo Lane, Brenchley, TN12 — £980,000 • 3 bed • 2 bath • 1292 ft²
4 bedroom detached house for sale in Bedgebury, Cranbrook, Kent, TN18 — £1,100,000 • 4 bed • 1 bath • 1672 ft²
3 bedroom detached house for sale in Rolvenden Road, Benenden, Cranbrook, Kent, TN17 — £995,000 • 3 bed • 2 bath • 1388 ft²
4 bedroom barn conversion for sale in Wierton Hill, Boughton Monchelsea, ME17 — £900,000 • 4 bed • 2 bath • 2413 ft²
4 bedroom barn conversion for sale in Steep Road, Crowborough, East Sussex, TN6 — £1,400,000 • 4 bed • 3 bath • 2234 ft²
4 bedroom detached house for sale in Snatts Road, Uckfield, East Sussex, TN22 — £1,200,000 • 4 bed • 2 bath • 2067 ft²






















































































































































