IG6 2RB - 3 bedroom terraced house for sale in Hanover Gardens, Fairl…

View on Property Piper

3 bedroom terraced house for sale in Hanover Gardens, Fairlop, IG6

Summary - 98, HANOVER GARDENS IG6 2RB

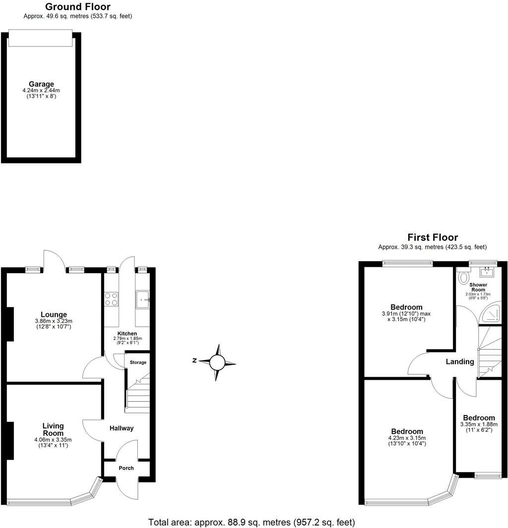
3 bed 1 bath Terraced

Three bedrooms with two reception rooms
Modern fitted kitchen and contemporary shower room
Off-road parking to front; garage to rear (storage/workshop)
Approximately 957 sq ft; freehold tenure
Small rear garden and modest plot size
Solid brick walls; insulation not assumed (may need upgrading)
Single bathroom only; family bathroom demand possible
Suggest roof/brickwork inspection; some cosmetic updating possible
Set on the popular Tudor Estate, this well-presented three-bedroom terraced house offers comfortable family living with excellent transport links. Internally the layout provides two reception rooms, a modern fitted kitchen and a contemporary shower room, all presented in good condition for immediate occupation.

Outside, the property benefits from off-road parking to the front and a rear garage that can be used for storage or a workshop. Claybury Park and local shops are within easy walking distance, while Fairlop and Hainault stations provide regular services into central London — a practical choice for commuters.

The house sits on a small to average plot with a modest rear garden. Constructed mid-20th century with solid brick walls, the home has double glazing and gas central heating; it may benefit from targeted cosmetic updating and a roof/brickwork inspection. The property is freehold and roughly 957 sq ft, suitable for a growing family or buy-to-let investor seeking a reliable, low-crime neighbourhood.

Important practical notes: there is a single shower room, limited loft/insulation information (solid walls assumed uninsulated) and a modest plot size. Buyers seeking larger gardens or multiple bathrooms should note these constraints before viewing.

Property Details

Brochure Descriptions

Image Descriptions

Floorplan Description

Rooms

Textual Property Features

Detected Visual Features

EPC Details

Nearby Schools

Nearest Bars And Restaurants

,,,,}

Nearest General Shops

,,}

Nearest Grocery shops

,,}

Nearest Supermarkets

,,}

Nearest Religious buildings

,,}

Nearest Medical buildings

,,,}

Nearest Airports

,}

Nearest Leisure Facilities

,,,,}

Nearest Tourist attractions

,,}

Nearest Train stations

,,,,}

Nearest Bus stations and stops

,,,,}

Nearest Hotels

,,}

Tags

Local Market Stats

AirBnB Data

Similar Properties

Meta

High Res Images

Compatible Images

Low res Images

Thumbnails

Raw Images

High Res Floorplan Images

Compatible Floorplan Images

Low res Floorplan Images

FloorplanImages Thumbnail

Raw Floorplan Images