**Standout Features:**
- Guide Price: £550,000 - £600,000
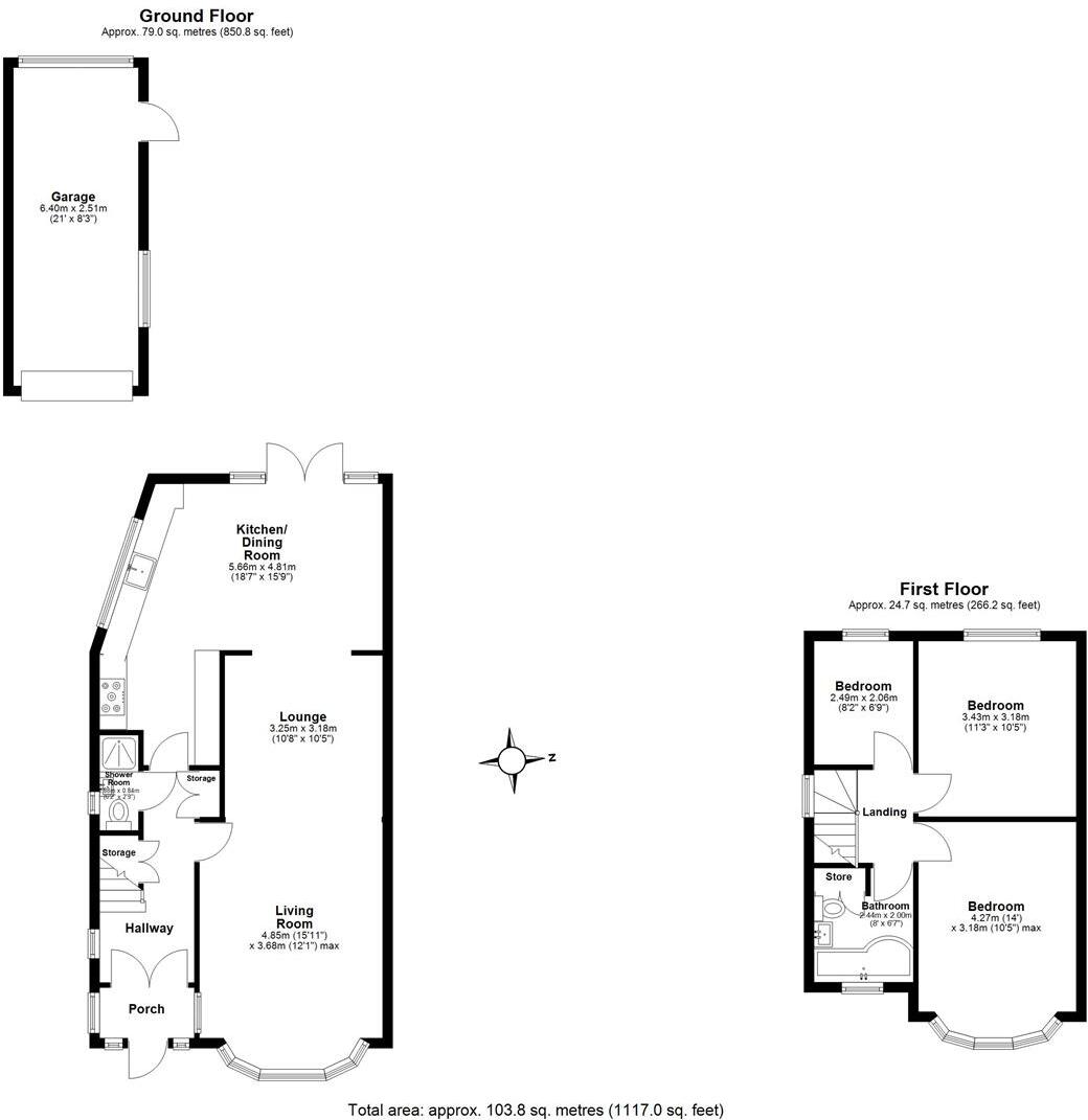
- 3 Bedrooms, 2 Bathrooms
- Extended rear for added living space
- Charming Tudor Revival style with large bay windows
- Ground floor shower room, first-floor bathroom
- Off-road parking for up to three cars
- Garage accessible via shared driveway
- Proximity to sought-after schools and only 0.8 miles from Gants Hill Station
- Well presented and ready to move in
**Potential Concerns:**
- Need for possible modernization and personalization
- Double glazing with unknown installation date
- Solid brick walls assumed without insulation
Discover your new family home in this beautifully extended end-of-terrace property on Stradbroke Grove, Clayhall. Ideal for families or any buyer seeking space, this home offers three well-proportioned bedrooms and two inviting reception rooms, providing ample room for relaxation and entertaining. Enjoy the convenience of a ground floor shower room alongside a first-floor bathroom, perfectly catering to busy lifestyles.
With off-road parking for multiple vehicles and a garage accessible via a shared driveway, you won't have to worry about parking in this desirable area. Families can take advantage of excellent local schools just a short walk away while benefiting from the easy transport links to central London with Gants Hill station merely 0.8 miles away. Although presented in good condition, there may be opportunities for future modernization to truly make this property your own.
Don't miss your chance to secure this comfortable, well-located home that merges convenience with community—properties like this don’t last long!
3 bedroom end of terrace house for sale in Stradbroke Grove, Clayhall, IG5 — £550,000 • 3 bed • 2 bath • 1408 ft²
3 bedroom terraced house for sale in Fullwell Avenue, Clayhall, IG5 — £425,000 • 3 bed • 1 bath • 960 ft²
3 bedroom semi-detached house for sale in Chalgrove Cresent, Clayhall, IG5 — £750,000 • 3 bed • 2 bath • 1302 ft²
3 bedroom semi-detached house for sale in Longwood Gardens, Ilford, IG5 — £575,000 • 3 bed • 1 bath • 783 ft²
3 bedroom semi-detached house for sale in The Glade, Clayhall, IG5 — £575,000 • 3 bed • 2 bath • 1212 ft²
3 bedroom terraced house for sale in Albemarle Gardens, Ilford, IG2 — £575,000 • 3 bed • 2 bath • 1140 ft²






















































































