Ready-investment home with parking and low running costs.
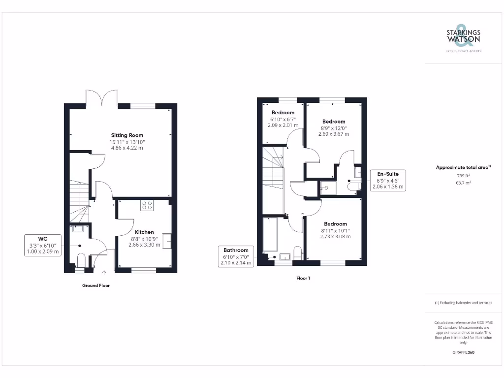
Mid-terrace townhouse, approx. 739 sq ft, turnkey condition
Recently modernised; EPC rating B
Three bedrooms; main bedroom with ensuite shower
15' open-plan sitting/dining room with French doors
Small enclosed rear garden; low maintenance only
Allocated parking plus en-bloc garage for storage
Tenants in situ — immediate rental income, no vacant possession
Freehold; low ground rent (£50) and modest service charge (£73.16)
Set in a quiet pedestrianised pocket of Queens Hill, this recently modernised mid-terrace townhouse offers turnkey accommodation and immediate rental potential. The property is compact (approx. 739 sq ft) but well laid out across two storeys, with a 15' open-plan sitting/dining room and a fully fitted kitchen with integrated appliances.
The main bedroom benefits from an ensuite shower room and there is a refitted family bathroom; loft access and multiple storage cupboards help maximise usable space. Outside, a small, landscaped and fully enclosed rear garden leads to allocated off-street parking and an en-bloc garage—useful for secure storage or as a tenant amenity.
Practical running costs are modest: freehold tenure, low annual ground rent (£50), a below-average service charge (£73.16 for 2025) and an EPC rating of B. There is no flood risk and the area is affluent with good broadband and mobile signal—factors attractive to professional tenants.
Important considerations: the property is small in overall footprint and the garden is low-maintenance rather than spacious. It currently has tenants in situ, which suits investors seeking immediate income but limits vacant possession for owner-occupiers. No major structural or safety issues are reported, and the home was constructed post-2012 and fitted with double glazing and modern heating.
3 bedroom terraced house for sale in Rufus Street, Queens Hills, Norwich, NR8 — £260,000 • 3 bed • 2 bath • 802 ft²
3 bedroom town house for sale in Redpoll Road, Costessey, Norwich, NR8 — £260,000 • 3 bed • 2 bath • 1000 ft²
3 bedroom town house for sale in Dunnock Drive, Queens Hill, NR8 — £245,000 • 3 bed • 2 bath • 839 ft²
3 bedroom semi-detached house for sale in Peter Pulling Drive, Queens Hill, Norwich, NR8 — £240,000 • 3 bed • 2 bath • 837 ft²
4 bedroom terraced house for sale in Vanguard Chase, Costessey, Norwich, NR5 — £300,000 • 4 bed • 2 bath • 1400 ft²
3 bedroom terraced house for sale in Cecil Sparkes Walk, Queens Hills, Norwich, NR8 — £230,000 • 3 bed • 1 bath • 652 ft²














































































