Large three-storey starter home with loft space, parking and low running costs..
Victorian mid-terrace with bay-front lounge and character features
Two double bedrooms plus fully boarded loft for extra living space
Large bathroom with bath and double shower
Triple glazed windows to the front; mains gas central heating
Low-maintenance rear garden and small front garden
One secured off-street parking space to the rear
EPC D — moderate energy efficiency, potential to improve
Pre-1900 property; age-related maintenance and loft permissions to check
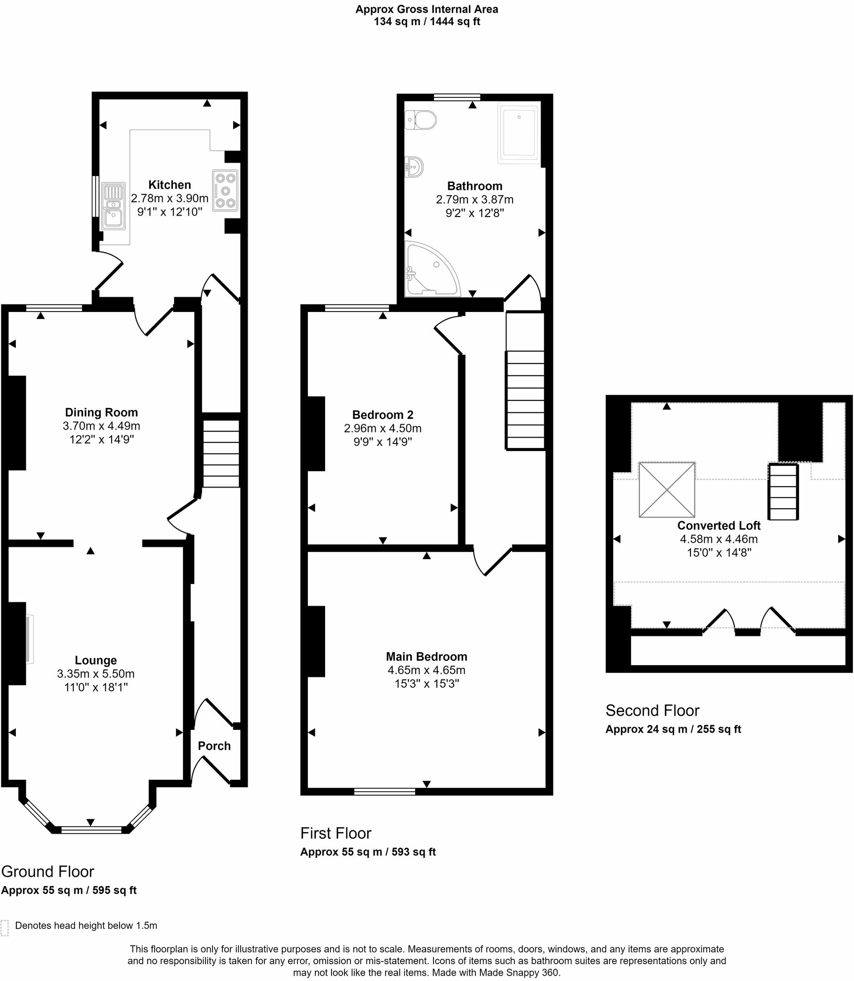
This Victorian mid-terrace offers surprisingly generous space across three storeys, ideal for a first-time buyer seeking value and character. The ground floor has a bay-front lounge, separate dining room with a brick fireplace and log burner, plus a practical kitchen. Two double bedrooms and a large bathroom occupy the first floor, while a fully boarded loft adds flexible extra space.
Practical benefits include triple glazing to the front, mains gas central heating with a boiler and radiators, fast broadband availability, and one secure off-street parking space behind gated access. The low-maintenance rear garden and small front garden suit those wanting easy exterior upkeep. The property is freehold with very low council tax (Band A), making it an affordable ongoing cost proposition.
Be aware this is a pre-1900 property where age-related maintenance may be required; cavity walls are filled and glazing install dates are unknown. The EPC is D, so buyers should expect moderate energy costs and consider improvements to raise efficiency. Details and any permissions for the loft conversion are not supplied; purchasers should verify compliance and headroom if the loft is to be used as primary living space.
Location is convenient for local amenities, transport links, several well-rated schools nearby, and leisure facilities, making this a practical, characterful starter home with scope to personalise and improve energy performance.
2 bedroom terraced house for sale in Bryn Road South, Ashton-In-Makerfield, WN4 — £160,000 • 2 bed • 1 bath • 840 ft²
2 bedroom terraced house for sale in Bolton Road, Ashton-In-Makerfield, WN4 — £130,000 • 2 bed • 1 bath • 904 ft²
2 bedroom terraced house for sale in Manchester Road, Ince, Wigan, WN2 — £100,000 • 2 bed • 1 bath • 972 ft²
2 bedroom terraced house for sale in Coronation Street, Wigan, WN3 — £140,000 • 2 bed • 1 bath • 897 ft²
2 bedroom terraced house for sale in Garswood Road, Ashton-In-Makerfield, WN4 — £170,000 • 2 bed • 1 bath • 927 ft²
2 bedroom cottage for sale in Billinge Road, Ashton-In-Makerfield, Wigan, WN4 — £270,000 • 2 bed • 2 bath • 1065 ft²


































































































