Spacious family living with generous garden and garage.
Extended three-bedroom semi-detached on a large plot
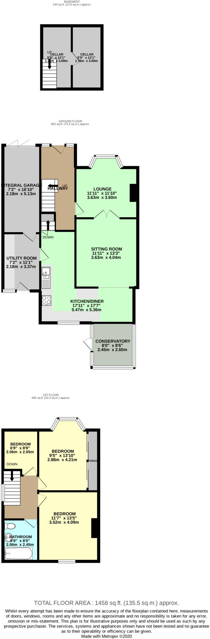
Set on a large plot in sought-after Edenthorpe, this extended three-bedroom semi-detached home offers practical family living with substantial outside space. The layout includes two reception rooms, a conservatory, a spacious kitchen-diner, utility room and a useful cellar — flexible spaces for family life and entertaining. A garage, long driveway and outbuilding with electricity add storage and hobby potential.
The garden is a standout: southeast-facing, securely fenced, with a large patio, lawn, apple trees, raised beds, greenhouse and a polytunnel (vendors will remove the polytunnel if not required). The outbuilding currently provides three functional areas (craft/gym, workshop, kennel/storage) that could be adapted into a home office or studio.
Practical updates have been completed: a new roof with new soffits and fascias and double glazing installed after 2002. The home benefits from mains gas central heating and fast broadband — convenient for commuters and remote workers. Local amenities, supermarkets, good schools and strong transport links are within easy reach.
Notable considerations: the property has a single family bathroom and was built in the 1930–1949 period with cavity walls assumed to lack insulation, so further energy-efficiency improvements may be required. The home is neutrally presented but offers renovation potential for buyers wanting to reconfigure reception space or modernise interiors to their taste.
4 bedroom semi-detached house for sale in Rowena Avenue, Edenthorpe, Doncaster, DN3 — £270,000 • 4 bed • 1 bath • 1214 ft²
3 bedroom detached house for sale in Meadow Walk, Edenthorpe, Doncaster, DN3 — £270,000 • 3 bed • 1 bath
3 bedroom semi-detached house for sale in Robin Hood Crescent, Edenthorpe, Doncaster, DN3 — £169,999 • 3 bed • 1 bath • 1110 ft²
3 bedroom semi-detached house for sale in Ridgewood Avenue, Doncaster, DN3 — £250,000 • 3 bed • 1 bath • 1033 ft²
3 bedroom semi-detached house for sale in Gurth Avenue, Edenthorpe, Doncaster, South Yorkshire, DN3 — £180,000 • 3 bed • 1 bath • 658 ft²
3 bedroom detached house for sale in Thorpehall Road, Edenthorpe, Doncaster, South Yorkshire, DN3 — £210,000 • 3 bed • 2 bath • 729 ft²










































































