Chain-free three-bed with garage, driveway and garden in popular Edenthorpe..
Chain-free three-bedroom semi on a decent plot
Offered chain-free, this three-bedroom semi sits on a decent plot in popular Edenthorpe. The property includes a driveway, detached garage and enclosed rear garden, giving good outdoor space for families and straightforward parking for multiple vehicles.
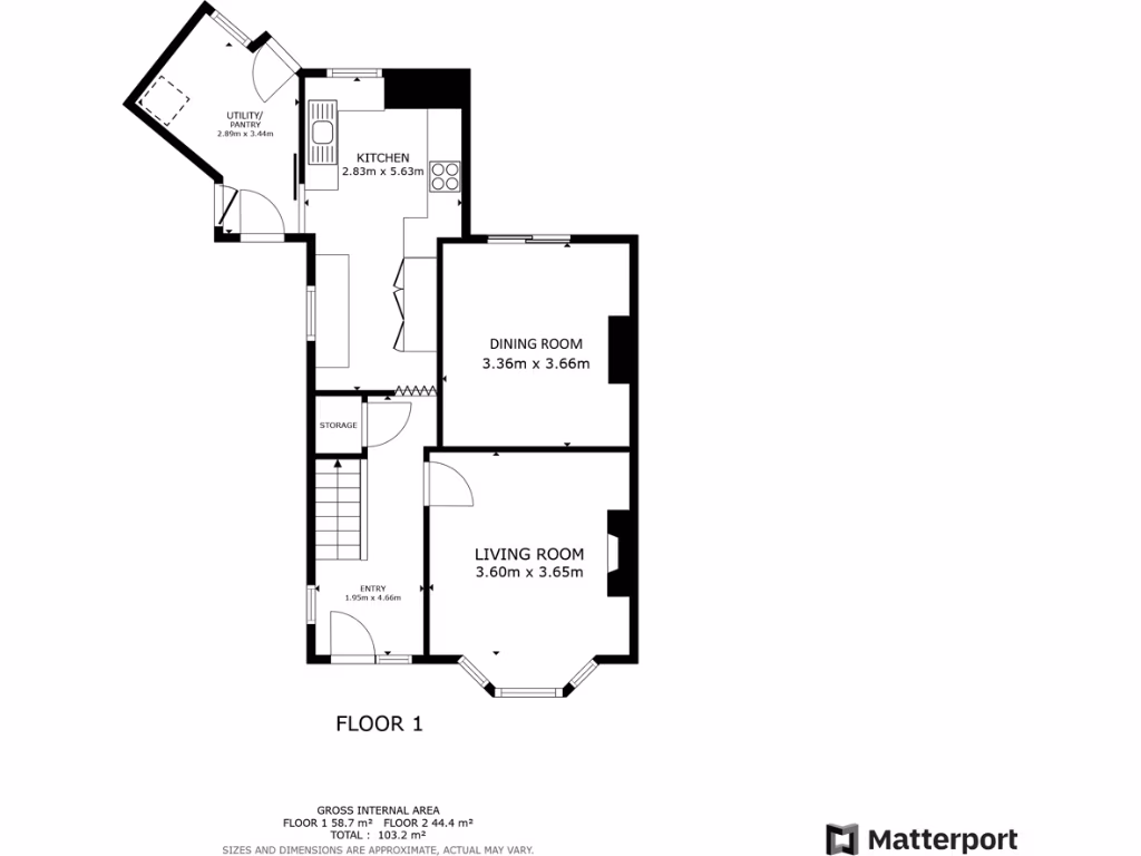
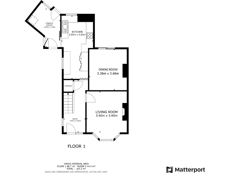
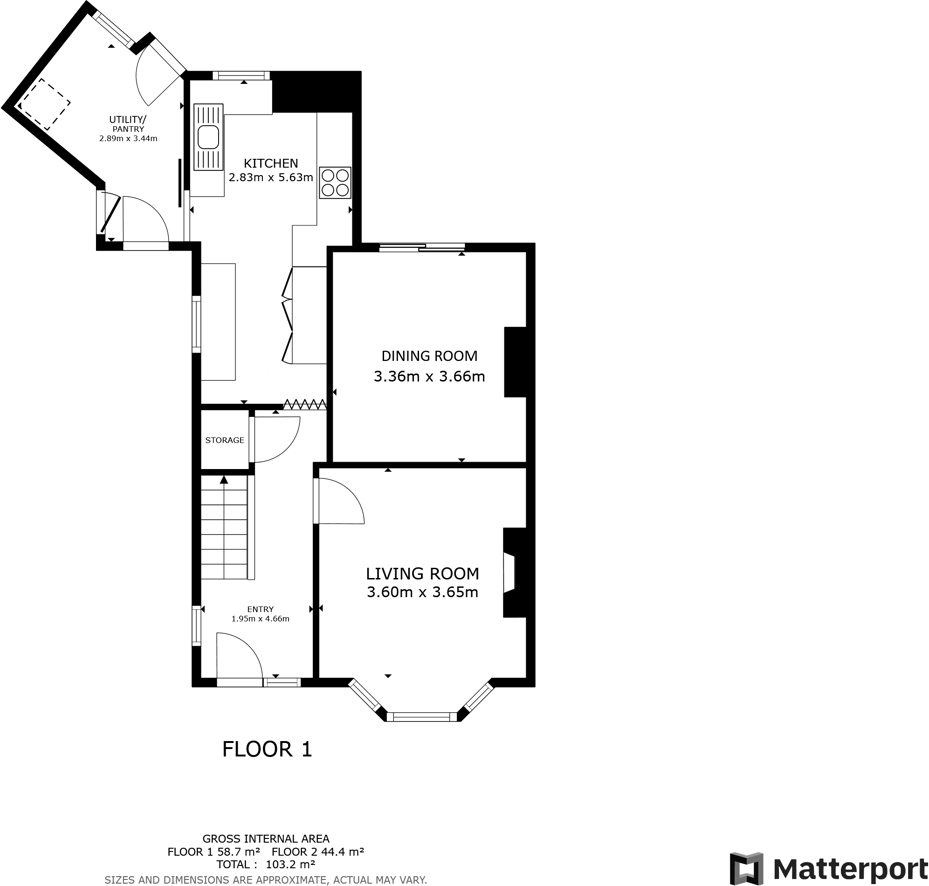
Inside are two reception rooms, a functional kitchen with adjoining utility space and a family bathroom serving three bedrooms upstairs. Rooms are average sized with traditional layouts typical of mid-20th century builds — comfortable but in need of cosmetic updating to bring them up to contemporary tastes.
Constructed in the 1950s–1960s with filled cavity walls, mains gas central heating and double glazing (unknown install date), the house is structurally typical for its era and has clear potential for improvement or extension (subject to checks). It benefits from fast broadband, excellent mobile signal and proximity to well-regarded local schools, shops and transport links.
Practical positives — freehold tenure, no flood risk, low council tax band and a 3D virtual tour available — make this an accessible purchase for growing families, first-time buyers or investors seeking a straightforward project. Note: the interior is dated and will require modernisation; buyers should budget for updating kitchens, bathrooms and decorating as needed.
3 bedroom semi-detached house for sale in Ridgewood Avenue, Edenthorpe, Doncaster, DN3 — £180,000 • 3 bed • 1 bath • 987 ft²
3 bedroom semi-detached house for sale in Locksley Avenue, Edenthorpe, Doncaster, DN3 — £155,000 • 3 bed • 1 bath • 901 ft²
4 bedroom semi-detached house for sale in Coningsburgh Road, Edenthorpe, Doncaster, DN3 — £220,000 • 4 bed • 2 bath • 592 ft²
2 bedroom semi-detached house for sale in Edencroft Drive, Edenthorpe, Doncaster, DN3 — £150,000 • 2 bed • 1 bath • 505 ft²
3 bedroom semi-detached house for sale in St Oswalds Drive, Edenthorpe, Doncaster, DN3 — £199,950 • 3 bed • 2 bath • 1055 ft²
2 bedroom semi-detached house for sale in Locksley Avenue, Edenthorpe, Doncaster, DN3 — £135,000 • 2 bed • 1 bath • 766 ft²






























































































