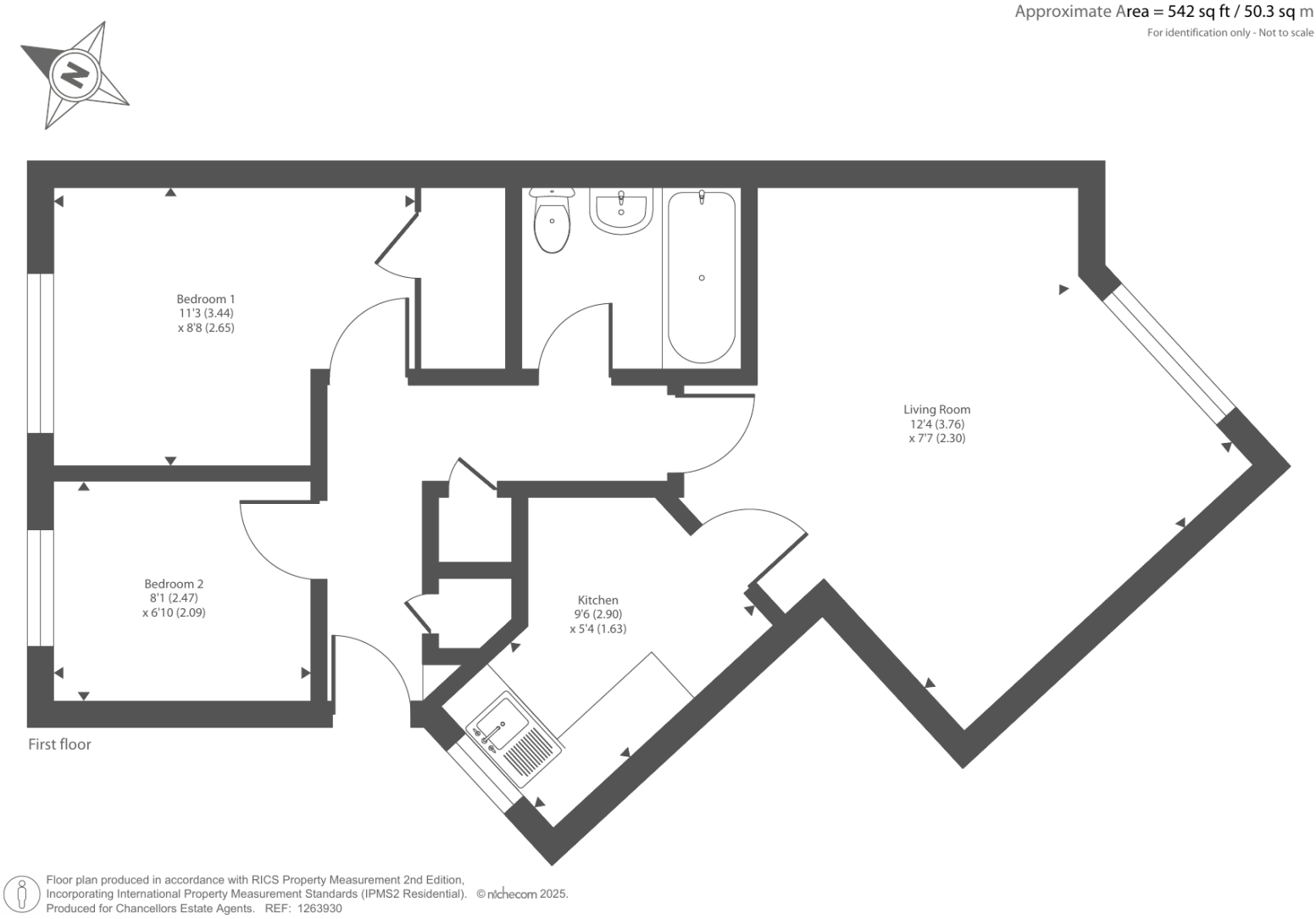
**Standout Features:**
- **Two Bedrooms:** Well-suited for small families or as an investment opportunity.
- **Allocated Parking & Off-Street Parking:** Convenient for residents and guests.
- **Cul-de-Sac Location:** Offers a quieter living environment.
- **Excellent Commuter Links:** Just 0.4 miles from the train station and close to the M40, ideal for commuters.
- **Communal Gardens:** A green space for outdoor activities.
- **Proximity to Town Centre:** Just a mile away, providing easy access to amenities.
**Potential Concerns:**
- **Short Lease Term:** Only 66 years remaining; this restriction may pose challenges with mortgage lenders.
- **High Crime Rate:** Important to consider for families seeking security.
- **Renovation Needed:** The living room features damaged carpet and an overall blank canvas, requiring updates.
Nestled in a tranquil cul-de-sac, this two-bedroom apartment offers the perfect blend of convenience and comfort, making it an appealing option for first-time buyers and investors alike. With both allocated and off-road parking, you’ll enjoy easy access to your home, while the communal gardens provide a serene spot to unwind. This property, ideally located just a mile from the vibrant town centre and 0.4 miles from the train station, boasts excellent commuter links.
While the apartment's 66-year lease may be a concern for future financing, its potential as a renovation project makes it a worthy consideration. The surrounding area is rich in amenities, including schools with 'Good' Ofsted ratings, creating a suitable environment for families. Take advantage of this opportunity to enter the housing market—properties like this are in demand and often don’t last long!
2 bedroom flat for sale in Banbury, Oxfordshire, OX16 — £160,000 • 2 bed • 1 bath • 570 ft²
2 bedroom flat for sale in Banbury, Oxfordshire, OX16 — £170,000 • 2 bed • 1 bath • 549 ft²
2 bedroom flat for sale in Banbury, Oxfordshire, OX16 — £160,000 • 2 bed • 2 bath • 682 ft²
2 bedroom apartment for sale in Alma Road, Banbury, OX16 — £160,000 • 2 bed • 2 bath • 605 ft²
2 bedroom retirement property for sale in Banbury, Oxfordshire, OX16 — £95,000 • 2 bed • 1 bath • 527 ft²
2 bedroom flat for sale in Northumberland Court, Banbury, OX16 — £155,000 • 2 bed • 1 bath • 501 ft²














































































