Ideal commuter base with allocated parking and long lease for first-time buyers.
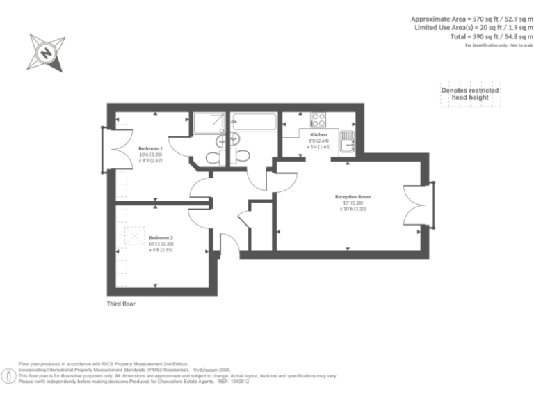
Two double bedrooms in a compact 590 sq ft layout
This purpose-built apartment offers a practical, affordable entry into Banbury living with excellent commuter links. The layout includes two double bedrooms, a living room and a fitted kitchen within a compact 590 sq ft footprint, plus allocated off-street parking and a long lease (135 years remaining), which supports mortgageability and future value retention.
The building is modern, well maintained and close to the town centre, train and bus stations, shops and schools, making daily life and commuting straightforward. Council tax costs are low and broadband and mobile signals are strong — useful for remote working or students.
Buyers should note the flat uses electric heating and room heaters, which can raise running costs compared with gas systems. The wider area shows higher crime and relative deprivation; consider security measures and local conditions when viewing. The apartment is compact, so it suits buyers seeking an economical, well-located home or a rental investment rather than large-family living.
2 bedroom flat for sale in Alma Road, Banbury, OX16 — £165,000 • 2 bed • 2 bath • 558 ft²
2 bedroom apartment for sale in Alma Road, Banbury, OX16 — £150,000 • 2 bed • 2 bath • 605 ft²
2 bedroom flat for sale in Banbury, Oxfordshire, OX16 — £180,000 • 2 bed • 2 bath • 622 ft²
2 bedroom flat for sale in Banbury, Oxfordshire, OX16 — £160,000 • 2 bed • 2 bath • 682 ft²
2 bedroom flat for sale in Banbury, Oxfordshire, OX16 — £150,000 • 2 bed • 2 bath • 625 ft²
2 bedroom apartment for sale in Lodge Close, Banbury, OX16 — £187,000 • 2 bed • 1 bath • 659 ft²






















































































