Chain-free Victorian garden flat with private front and rear outdoor space.
Chain-free two-bedroom garden flat, approx. 624 sq ft
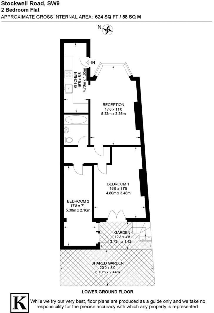
Set on the lower ground floor of a handsome Victorian end-of-terrace on Stockwell Road, this recently refreshed two-bedroom flat offers an unusually generous layout and private outdoor space on both sides. A bay-fronted reception with high ceilings brings light into the front of the home, while the principal bedroom opens onto a private patio garden — a rare find for a flat in central Brixton. The property extends to about 624 sq ft and is offered chain-free with a long lease (circa 150 years).
Practical upgrades reduce immediate maintenance worries: a full rewire was completed in 2023 and the gas boiler was replaced in 2017. Neutral decoration and fresh paint mean the flat is largely move-in ready, suiting first-time buyers who want a characterful home close to amenities. Transport is excellent — Brixton tube and overground are a few minutes’ walk away, with Clapham and Stockwell also within easy reach.
Buyers should note material considerations plainly: the property is leasehold (not freehold), the building dates from the early 20th century and the original solid-brick walls are assumed uninsulated, so further energy upgrades may be advisable. The flat sits in a part of London with high crime levels and notable area deprivation, which some purchasers may want to weigh against the location benefits and rental potential.
Overall this is a well-proportioned, characterful garden flat offering immediate comfort and scope to add value through energy and cosmetic improvements. It will suit first-time buyers seeking a central Brixton base or investors looking for a long-lease, chain-free purchase close to strong transport and local amenities.
2 bedroom flat for sale in Tunstall Road, SW9 — £575,000 • 2 bed • 1 bath • 636 ft²
2 bedroom flat for sale in Stockwell Road, SW9 — £725,000 • 2 bed • 2 bath • 918 ft²
2 bedroom flat for sale in Tunstall Road, Brixton, London, SW9 — £599,950 • 2 bed • 1 bath • 702 ft²
2 bedroom flat for sale in Stockwell Road, Stockwell, SW9 — £550,000 • 2 bed • 1 bath • 665 ft²
2 bedroom flat for sale in Stockwell Road, SW9 — £450,000 • 2 bed • 2 bath • 514 ft²
1 bedroom flat for sale in Kellett Road, Brixton, London, SW2 — £500,000 • 1 bed • 1 bath • 612 ft²






































