SW9 9TB - 2 bedroom flat for sale in Stockwell Road, SW9

View on Property Piper

2 bedroom flat for sale in Stockwell Road, SW9

Summary - Stockwell Road, SW9 SW9 9TB

2 bed 2 bath Flat

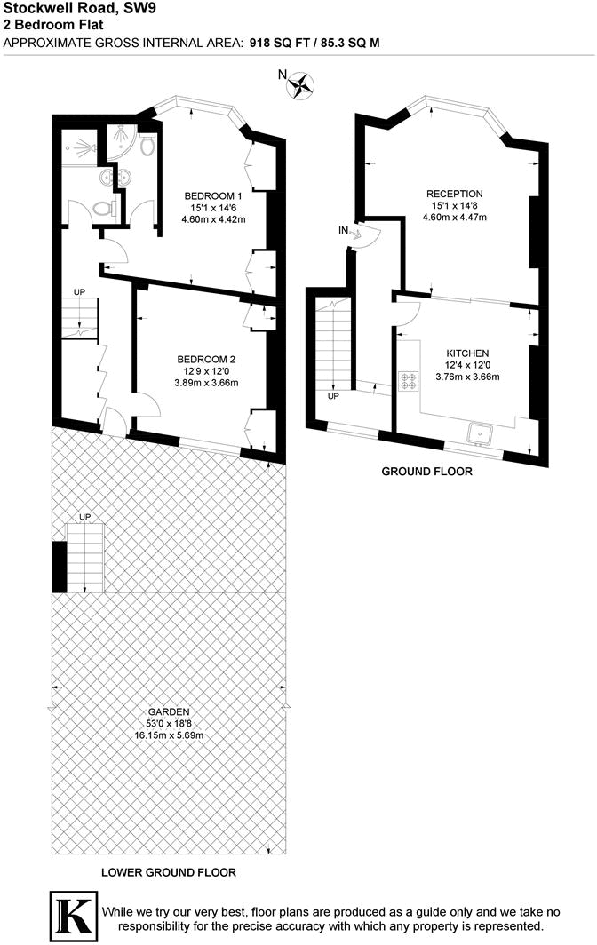
Nearly 1,000 sq ft split-level Victorian conversion
This split-level, two-bedroom apartment occupies nearly 1,000 sq ft of a Victorian end-of-terrace conversion and has been newly refurbished throughout. Light, high-ceiling living spaces and a contemporary shaker kitchen sit on the upper floor, creating an airy entertaining level with clever pocket doors and a deep sash bay window.

A rare outdoor asset for this location is the larger-than-average South-West facing private garden, arranged with a decked terrace and lawn, plus secure side access. Both bedrooms are double-sized and tucked away on the lower level; the principal has an en-suite and there is a second modern shower room.

Practical facts to weigh: the property is leasehold (circa 150 years remaining) and chain-free, with mains gas heating, fast broadband and excellent mobile signal. The building is solid-brick and retains single-glazed sash windows with no assumed wall insulation, so further thermal upgrades could be beneficial.

Location is a prime draw—a five-minute stroll to Brixton Village, Ritzy and Brixton stations, with Clapham and Stockwell also within walking distance. Be aware the immediate area records higher-than-average crime and significant deprivation; purchasers seeking strong local amenities and transport should balance this against neighbourhood considerations and potential retrofit costs.

Property Details

Brochure Descriptions

Image Descriptions

Floorplan Description

Rooms

Textual Property Features

Detected Visual Features

EPC Details

Nearby Schools

Nearest Bars And Restaurants

,,,,}

Nearest General Shops

,,}

Nearest Grocery shops

,,}

Nearest Supermarkets

,,}

Nearest Religious buildings

,,}

Nearest Medical buildings

,,,}

Nearest Airports

,,}

Nearest Leisure Facilities

,,,,}

Nearest Tourist attractions

,,}

Nearest Train stations

,,,,}

Nearest Bus stations and stops

,,,,}

Nearest Hotels

,,}

Tags

Local Market Stats

AirBnB Data

Meta

High Res Images

Compatible Images

Low res Images

Thumbnails

Raw Images

High Res Floorplan Images

Compatible Floorplan Images

Low res Floorplan Images

FloorplanImages Thumbnail

Raw Floorplan Images