Compact Victorian terrace ideal for buyer-investors seeking value and location.
Chain free terrace in sought East Oxford location
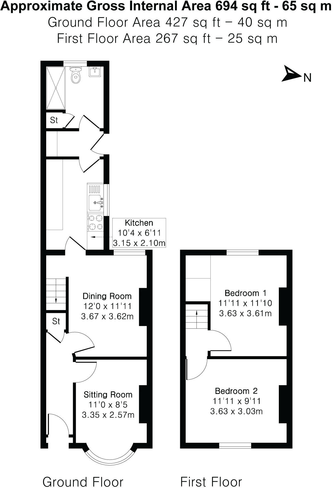
This Victorian mid-terrace on Sidney Street sits in a sought-after East Oxford pocket well used by students and professionals. Offered chain free, the house has two separate reception rooms, two double bedrooms and an enclosed rear garden — a solid canvas for modernisation and layout improvement.
The property requires renovation throughout, presenting a clear opportunity to add value through reconfiguration, cosmetic updating and insulation upgrades (walls are solid brick with no assumed insulation). Modern comforts include double glazing installed after 2002 and mains gas central heating via boiler and radiators.
Rooms are generally small to average in size across roughly 694 sq ft, so this will suit buyers looking for a compact family home, first-time buyers, or investors seeking a refurbishment project close to central Oxford amenities and public transport. The plot is modest but private, and there is no flood risk.
Local schools are well regarded, with several ‘Good’ rated primaries and secondary options nearby, and the neighbourhood offers plentiful cafés, pubs and transport links. Be prepared for renovation works and the likely need to upgrade insulation and some services to modern standards.
2 bedroom terraced house for sale in Sidney Street East Oxford OX4 — £475,000 • 2 bed • 2 bath • 820 ft²
2 bedroom terraced house for sale in Chapel Street, East Oxford, OX4 — £400,000 • 2 bed • 1 bath • 489 ft²
2 bedroom terraced house for sale in Catherine Street, East Oxford, OX4 — £465,000 • 2 bed • 1 bath • 695 ft²
3 bedroom house for sale in Alexandra Road, Oxford, OX2 — £585,000 • 3 bed • 1 bath • 936 ft²
2 bedroom terraced house for sale in East Oxford, Oxford, OX4 — £300,000 • 2 bed • 1 bath • 781 ft²
4 bedroom terraced house for sale in Aston Street, East Oxford, OX4 — £950,000 • 4 bed • 2 bath • 1565 ft²










































