Ideal starter renovation near city amenities and transport links.
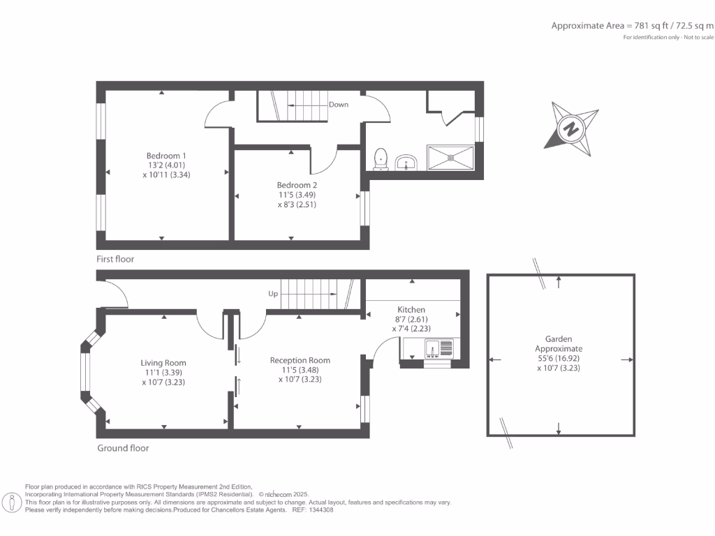
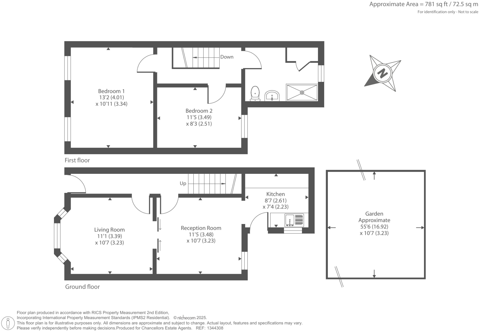
- Two bedrooms with two reception rooms and flexible layout
- Private garden with a decent plot for a city home
- Approximately 72 sq m / 781 sq ft of living space
- Chain free for a straightforward purchase process
- Requires full renovation and modernisation throughout
- Solid brick walls likely have no cavity insulation (assumed)
- Double glazing installed before 2002 may need replacement
- Mains gas boiler and radiators; low flood risk and low crime
This traditional two-bedroom mid-terrace sits in a sought-after East Oxford pocket, about 1.4 miles from the city centre. Period features such as bay windows and original fireplaces give the house character, while a decent private garden adds outdoor space rarely found in city locations.
The property is offered chain free and presents a clear renovation opportunity for a first-time buyer or investor. The layout includes two reception rooms, a kitchen and family bathroom across approximately 72 sq m (781 sq ft), with mains gas central heating already installed. Broadband speeds and mobile signal are strong, and local schools and amenities are within easy reach.
Practical points to note: the house requires updating throughout, the solid brick walls are likely uninsulated, and the double glazing was installed before 2002. These are realistic costs to factor into a purchase but also create scope to add value through modernisation and insulation improvements. Council tax is affordable and flood risk is low, supporting straightforward day-to-day living.
For buyers seeking a project close to Oxford’s employment and cultural hubs, this home offers a rare combination of period charm, outdoor space and a prime East Oxford address ready for improvement.
2 bedroom terraced house for sale in East Oxford, Oxford, OX4 — £400,000 • 2 bed • 2 bath • 838 ft²
2 bedroom terraced house for sale in East Avenue, Oxford, OX4 — £450,000 • 2 bed • 1 bath • 895 ft²
3 bedroom house for sale in Alexandra Road, Oxford, OX2 — £585,000 • 3 bed • 1 bath • 936 ft²
2 bedroom terraced house for sale in Chapel Street, East Oxford, OX4 — £400,000 • 2 bed • 1 bath • 489 ft²
3 bedroom terraced house for sale in Warneford Road, East Oxford OX4 — £635,000 • 3 bed • 1 bath • 1322 ft²
3 bedroom terraced house for sale in Cumberland Road, Oxford, OX4 — £350,000 • 3 bed • 1 bath • 790 ft²


















































































