IP22 5SB - 3 bedroom detached bungalow for sale in Snow Street, Roydon…

View on Property Piper

3 bedroom detached bungalow for sale in Snow Street, Roydon, Diss, IP22

Summary - Oak Lodge, Snow Street, Roydon IP22 5SB

3 bed 2 bath Detached Bungalow

**Standout Features:**
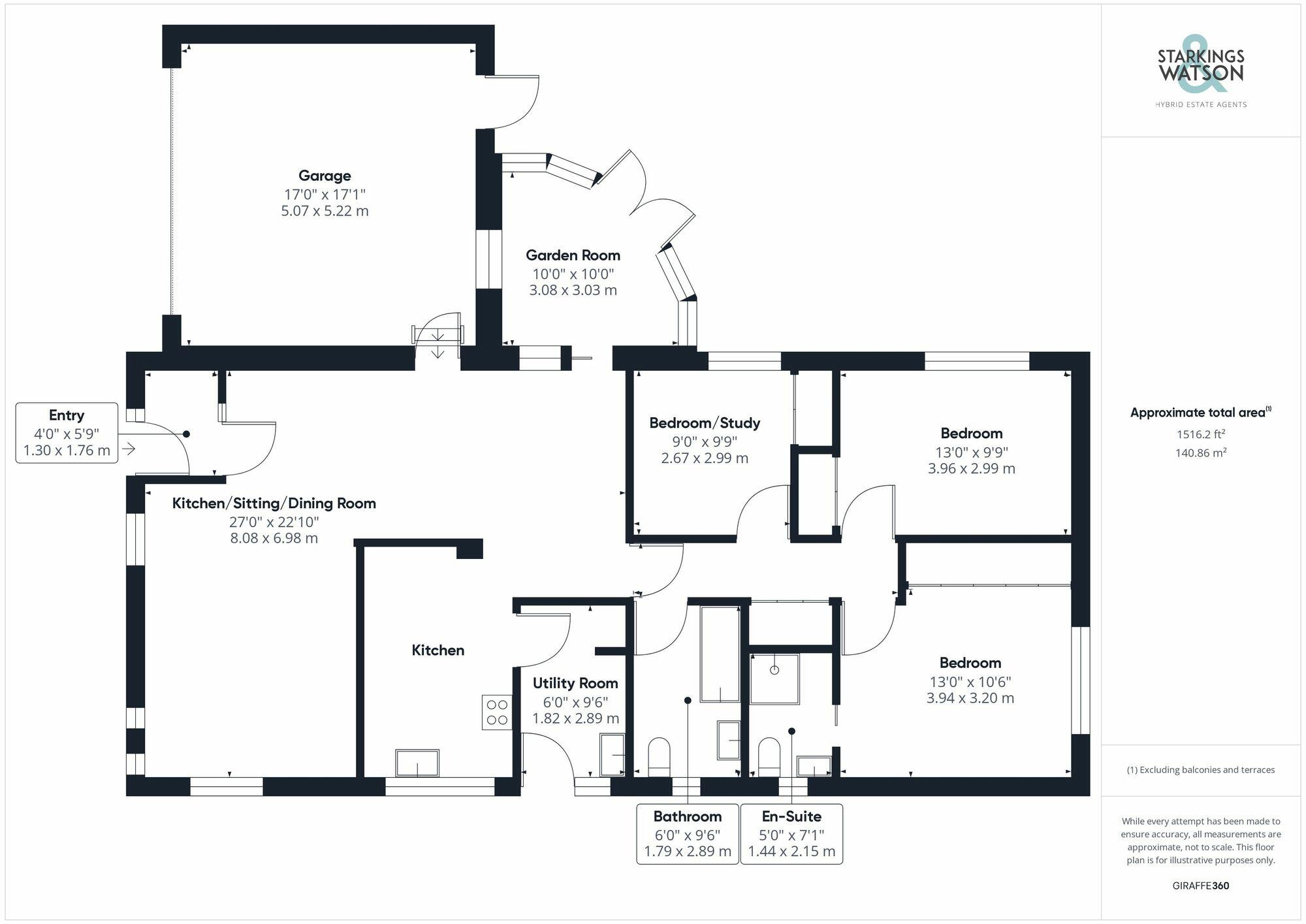
- Spacious detached bungalow with approximately 1500 SQFT.
- L-shaped open plan reception area filled with natural light.
- Three ample bedrooms, including a master with en-suite.
- Generous private rear gardens with terrace ideal for entertaining.
- Integral double garage and ample driveway parking.
- Sought-after semi-rural location on a quiet country lane.

**Summary:**
Discover this beautifully presented detached bungalow nestled in the desirable Snow Street area of Roydon, perfect for families seeking comfort and space. This property boasts an impressive 1500 SQFT of living space, featuring a spacious L-shaped reception area that welcomes natural light and is centered around a cozy brick fireplace. The well-equipped modern kitchen and separate utility room provide functional spaces for daily living.

The home consists of three generous bedrooms, including a master suite with an en-suite shower, perfect for relaxation. The family bathroom is stylishly tiled and equipped with both a bath and shower. Step outside to enjoy expansive private gardens, ideal for outdoor gatherings on the terrace. The front of the property is framed with lush shrubbery, enhancing its appeal and ensuring privacy.

Located in a tranquil setting, you will enjoy low crime rates and an affluent neighborhood, complemented by nearby schools rated "Good" and "Outstanding." While the property is in excellent order, it offers potential for personal touches and future enhancements. With a guide price of £425,000 - £450,000, this opportunity won’t last long—envision yourself in this welcoming home today!

Property Details

Image Descriptions

Floorplan Description

Rooms

Textual Property Features

Detected Visual Features

EPC Details

Nearby Schools

Nearest Bars And Restaurants

,,,,}

Nearest General Shops

,,}

Nearest Grocery shops

,,}

Nearest Supermarkets

,,}

Nearest Religious buildings

,,}

Nearest Medical buildings

,,,}

Nearest Leisure Facilities

,,,,}

Nearest Tourist attractions

,,}

Nearest Train stations

,,,,}

Nearest Bus stations and stops

,,,,}

Nearest Hotels

,,}

Tags

Local Market Stats

AirBnB Data

Similar Properties

Meta

High Res Images

Compatible Images

Low res Images

Thumbnails

Raw Images

High Res Floorplan Images

Compatible Floorplan Images

Low res Floorplan Images

FloorplanImages Thumbnail

Raw Floorplan Images