IP22 5RL - 3 bedroom detached bungalow for sale in Waterloo Avenue, Ro…

View on Property Piper

3 bedroom detached bungalow for sale in Waterloo Avenue, Roydon, Diss, IP22

Summary - 24 WATERLOO AVENUE, ROYDON IP22 5RL

3 bed 1 bath Detached Bungalow

**Standout Features:**
- **Detached Bungalow** with no chain
- **Three spacious bedrooms**
- **Generous kitchen/dining area**
- **Recently re-fitted bathroom**
- **Private rear gardens & single garage**
- **Potential to extend** (subject to planning)

**Additional Details:**
- Located in a quiet area of Roydon, close to Diss
- Exceptional **low crime rate** and an **affluent community**
- Excellent **mobile signal** and average **broadband speeds**
- Affordable **council tax**
- **Good local schools** with high ratings

Discover this charming detached bungalow, thoughtfully presented and located in a serene part of Roydon, just a stone's throw from Diss. This three-bedroom gem features a spacious sitting room with a cozy fireplace, a generous kitchen/dining area perfect for family gatherings, and a newly renovated bathroom. With a well-maintained garden and a single garage, it offers excellent outdoor space and parking convenience.

The property’s potential is impressive; with room for extension at the rear (subject to planning), you can truly customize this space to suit your lifestyle. This is an ideal opportunity for families looking for a peaceful retreat with access to reputable schools and a range of local amenities. Don’t miss out on this desirable, no-chain bungalow—opportunities like this are rare!

Property Details

Image Descriptions

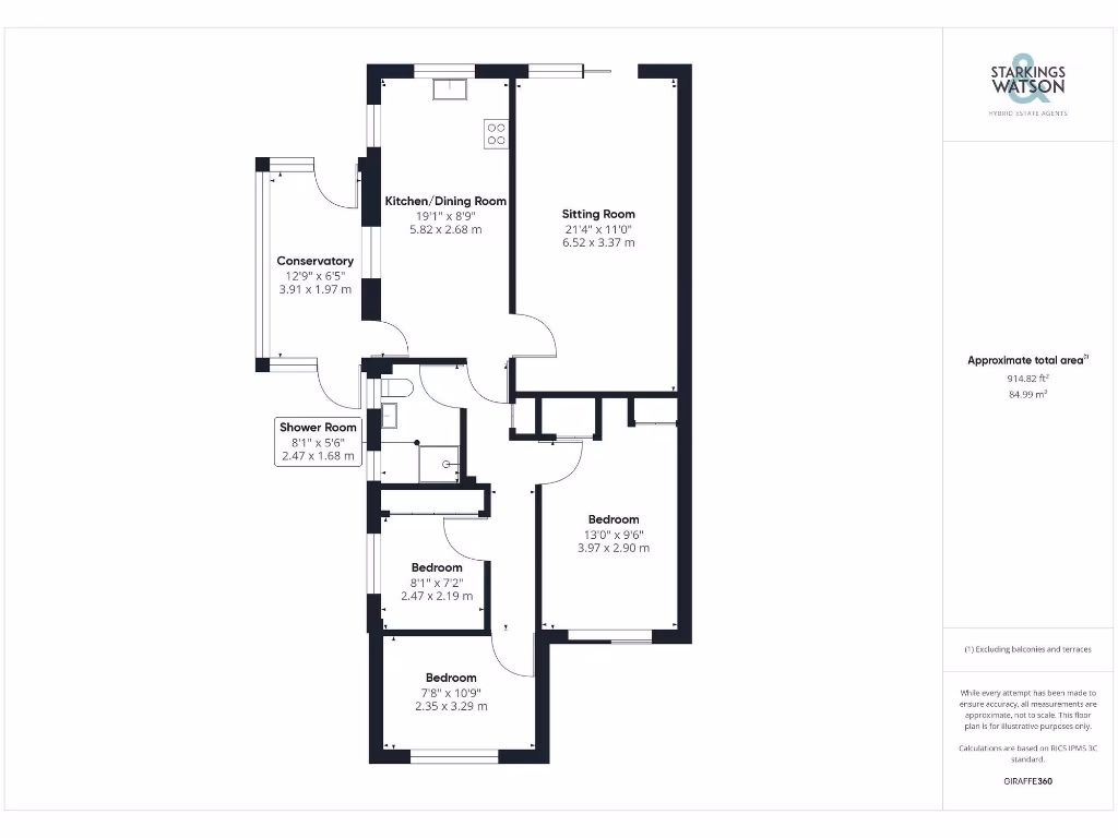
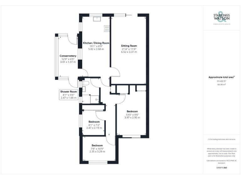
Floorplan Description

Rooms

Textual Property Features

Detected Visual Features

EPC Details

Nearby Schools

Nearest Bars And Restaurants

,,,,}

Nearest General Shops

,,}

Nearest Grocery shops

,,}

Nearest Supermarkets

,,}

Nearest Religious buildings

,,}

Nearest Medical buildings

,,,}

Nearest Leisure Facilities

,,,,}

Nearest Tourist attractions

,,}

Nearest Train stations

,,,,}

Nearest Bus stations and stops

,,,,}

Nearest Hotels

,,}

Tags

Local Market Stats

AirBnB Data

Similar Properties

Meta

High Res Images

Compatible Images

Low res Images

Thumbnails

Raw Images

High Res Floorplan Images

Compatible Floorplan Images

Low res Floorplan Images

FloorplanImages Thumbnail

Raw Floorplan Images