**Standout Features:**
- Four/five good-sized bedrooms
- South-facing rear garden with extension potential (STPP)
- Ground floor shower room
- Open-plan living and dining area
- Separate sitting room/bedroom
- Well-fitted kitchen adjacent to dining
- Garage with additional parking available
- Excellent location near local amenities and schools
- Fast broadband and good mobile signal
**Notable Concerns:**
- Above average crime rate in the area
- Cavity walls with assumed lack of insulation
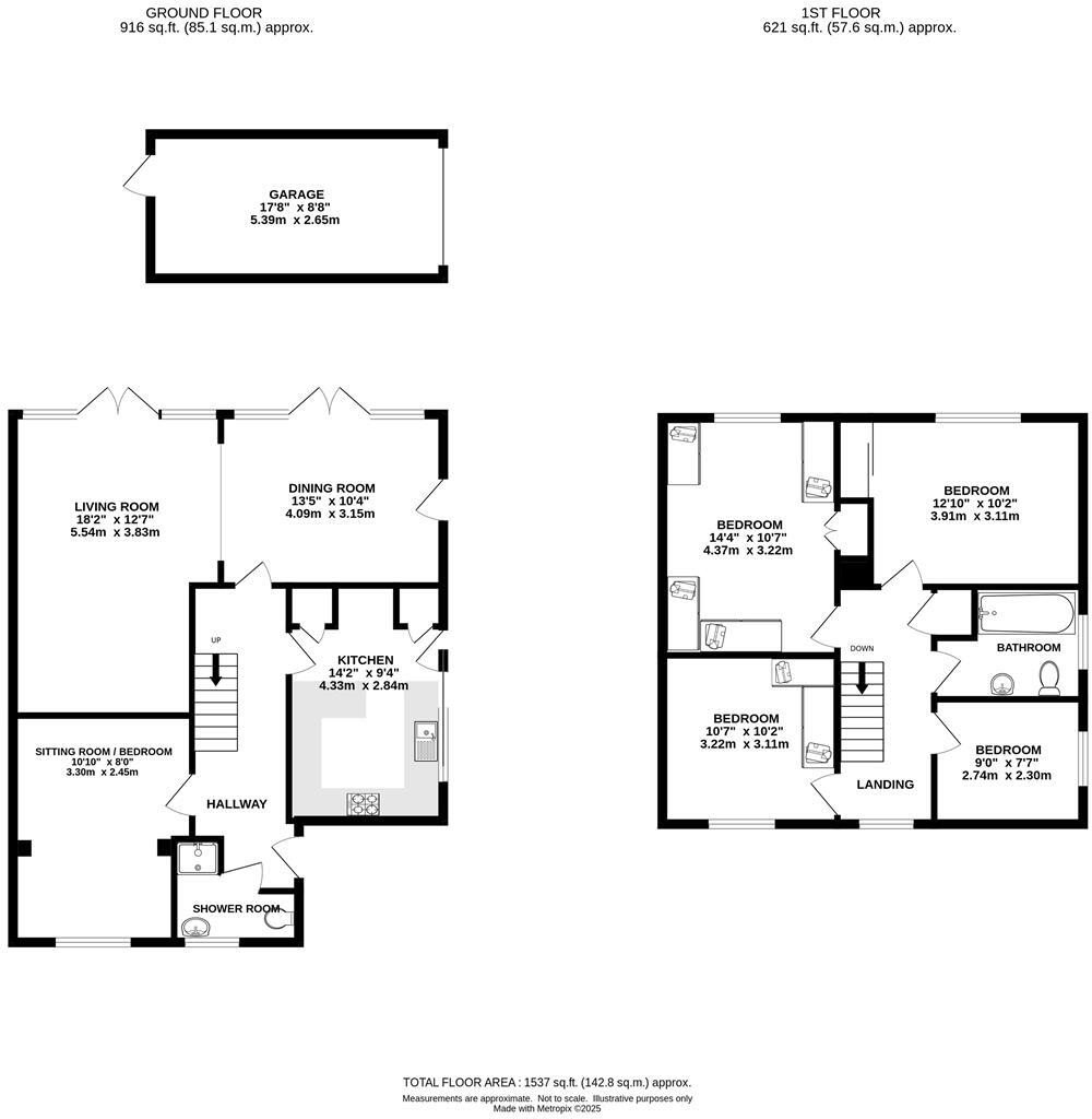
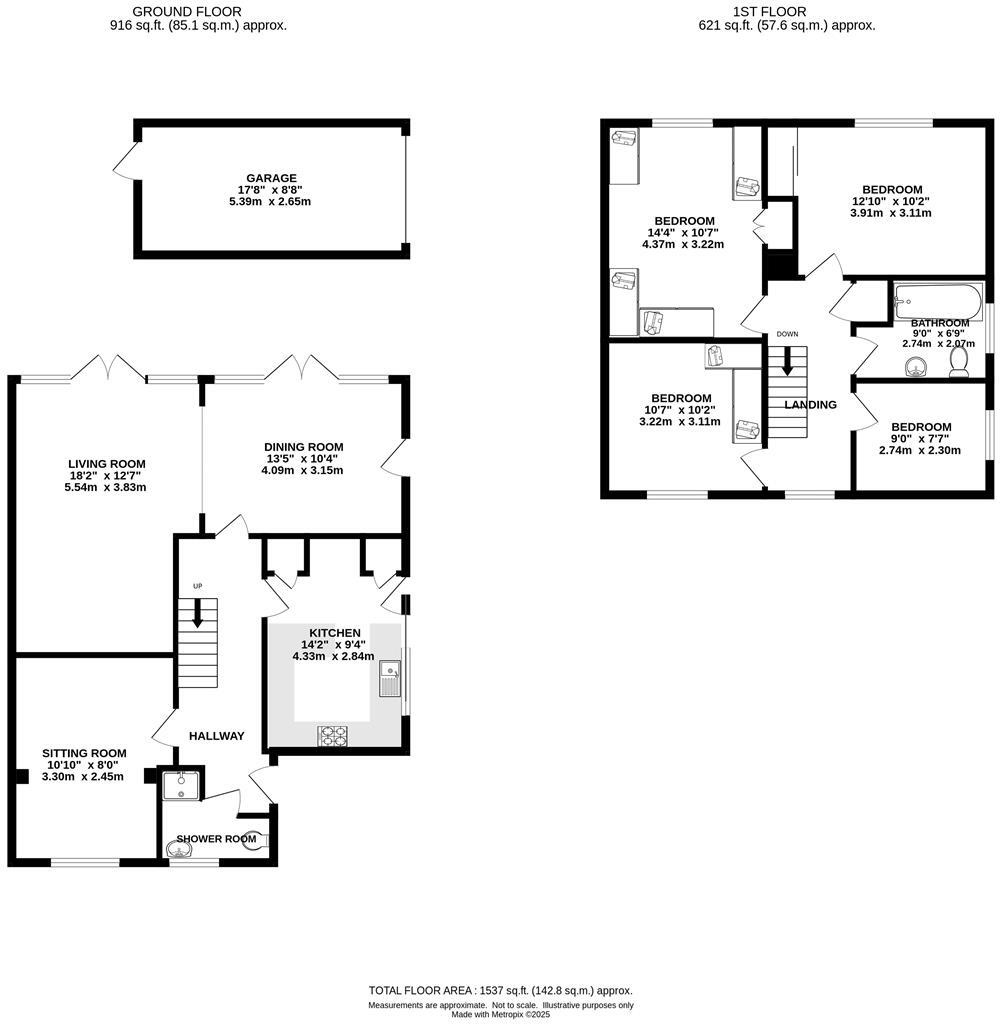
Nestled in the quiet charm of Kelvedon Hatch, this link-detached family home presents a unique opportunity for both spacious living and future expansion. Spanning over 1,537 square feet, the property features four spacious bedrooms, complemented by a versatile separate sitting room that can serve as a fifth bedroom or office. Ideal for families, the bright open-plan living and dining area invites natural light, flow, and comfort, while the well-equipped kitchen adds to the functional appeal.
Step outside to a tidy, south-facing garden that wraps around the house, perfect for outdoor gatherings and offering significant potential for extension (subject to planning permission). The essential ground floor shower room and a family bathroom upstairs enhance daily convenience. With a garage accessible from Luthers Close and additional driveway parking, this home meets practical needs while being walking distance from local schools, amenities, and lovely rural surroundings.
This exceptional property won’t last long—seize the chance to create your dream home in a desirable location!
4 bedroom link detached house for sale in Horseman Court, Kelvedon Hatch, Brentwood, CM15 — £550,000 • 4 bed • 1 bath • 1171 ft²
4 bedroom detached house for sale in Roding Drive, Kelvedon Hatch, Brentwood, CM15 — £570,000 • 4 bed • 1 bath • 1386 ft²
4 bedroom semi-detached house for sale in Glovers Field, Kelvedon Hatch, CM15 — £650,000 • 4 bed • 2 bath • 1678 ft²
5 bedroom detached house for sale in Lyndale, Kelvedon Hatch, Brentwood, CM15 — £630,000 • 5 bed • 1 bath • 1351 ft²
5 bedroom detached house for sale in Stocksfield, Kelvedon Hatch, Brentwood, CM15 — £665,000 • 5 bed • 2 bath • 1596 ft²
4 bedroom detached house for sale in School Road, Kelvedon Hatch, Brentwood, Essex, CM15 — £850,000 • 4 bed • 2 bath • 1791 ft²


















































































































