**Standout Features:**
- **Expansive Land:** 48 acres of private land suitable for equestrian use
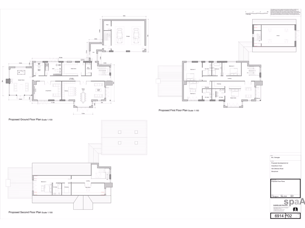
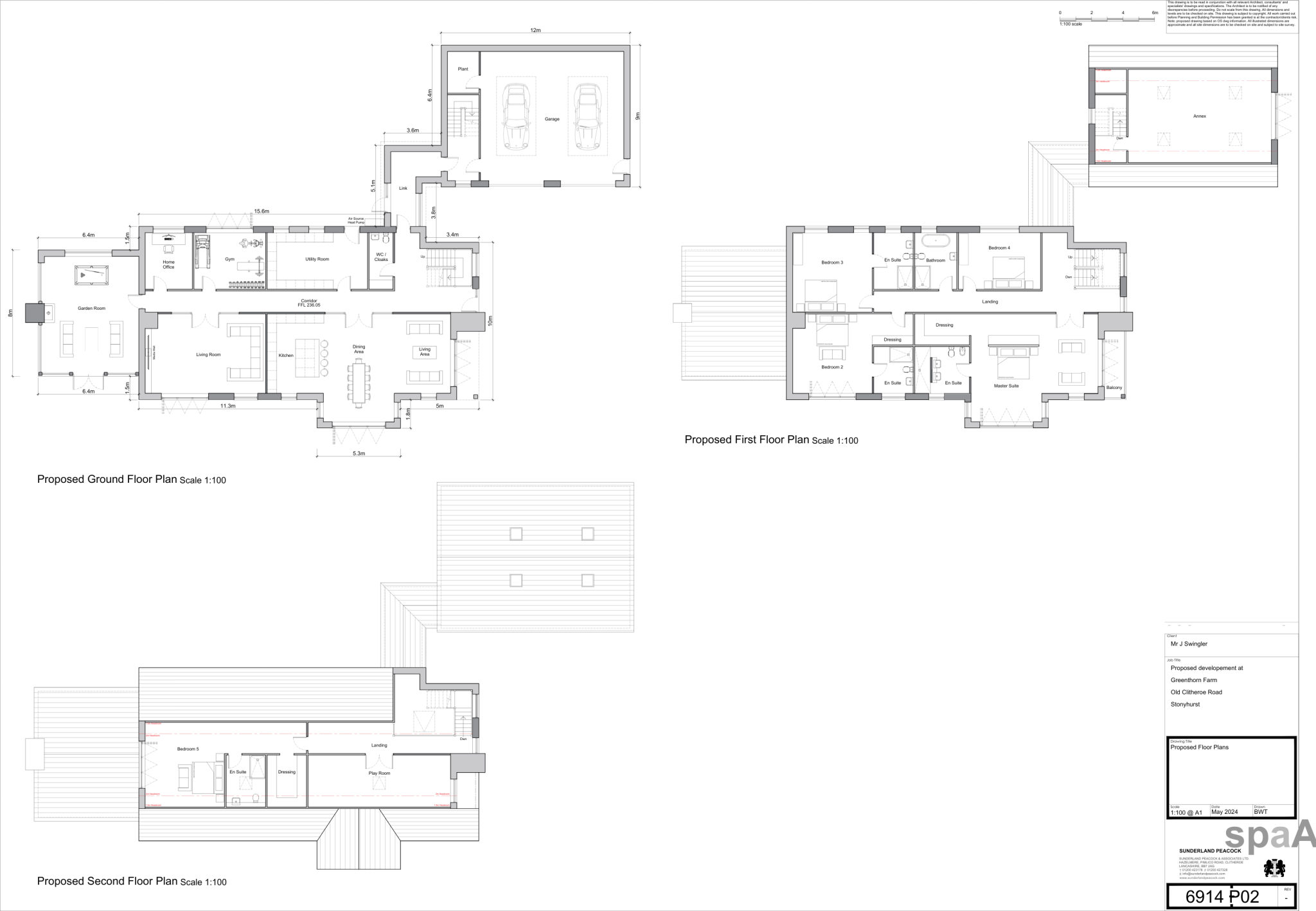
- **Planning Permission:** Approved for an 8,000 sq. ft. executive residence (Option to amend the design)
- **Rural Location:** Scenic countryside views with a tranquil setting, just 1 mile from Stonyhurst College
- **Current Structures:** Includes existing farm buildings; potential for renovation
- **Utilities:** Mains electricity and natural spring water; septic tank drainage system
**Concerns:**
- **Maintenance Required:** Existing outbuildings may need restoration
- **Slow Broadband:** Limited connectivity may affect remote work or online activities
**Summary:**
Greenthorn Farm presents an unparalleled opportunity to create your dream home in an idyllic rural setting, boasting 48 acres of stunning countryside. With planning permission already granted for a substantial 8,000 sq. ft. residence, this South-facing plot allows for a luxurious family retreat tailored to your specifications. The property is just a mile from the esteemed Stonyhurst College and is surrounded by charming views beneath the Longridge Fell plantation.
Ideal for families or investors looking for a serene getaway, this location offers a perfect combination of seclusion and convenience, with Clitheroe's amenities within easy reach. Enjoy the existing surroundings of mature trees and rolling fields, while considering the potential to renovate existing outbuildings into additional living spaces or storage. While the property offers beautiful outdoor space, it requires some maintenance and improvement, especially regarding outbuildings.
Don’t miss this chance to own a truly unique slice of countryside, where memories can be made and comfort is guaranteed. Experience exclusivity and potential in one of the area’s most desirable locations. Act quickly to envision the possibilities!
5 bedroom detached house for sale in Stonyhurst, Clitheroe, Lancashire BB7 — £1,395,000 • 5 bed • 1 bath • 8000 ft²
5 bedroom detached house for sale in Talbot Bridge, Bashall Eaves, Clitheroe, Lancashire, BB7 — £2,250,000 • 5 bed • 2 bath • 3078 ft²
4 bedroom detached house for sale in Alston Lane, Alston, Preston, Lancashire, PR3 — £1,295,000 • 4 bed • 2 bath • 2854 ft²
6 bedroom detached house for sale in Thornley Road, Chaigley, Clitheroe, Lancashire, BB7 — £625,000 • 6 bed • 3 bath • 2067 ft²
5 bedroom detached house for sale in Sawley Road, Grindleton, Clitheroe, Lancashire, BB7 — £750,000 • 5 bed • 1 bath • 2236 ft²
5 bedroom farm house for sale in Ramsclough Lane, Oswaldtwistle, BB5 — £750,000 • 5 bed • 3 bath • 3076 ft²


























































































