Large garden plot with garage and studio ideal for family life.
- Three bedrooms in a detached, traditional cottage
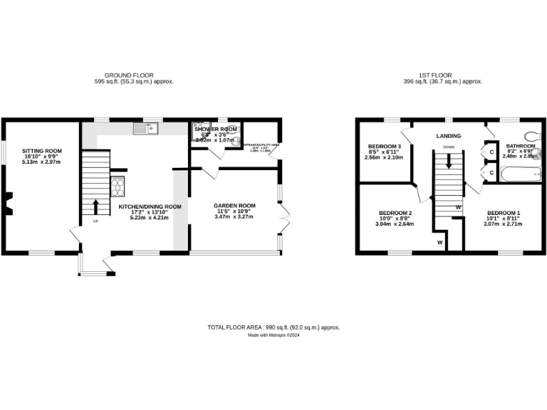
Set on a large plot in Combe St. Nicholas, this three-bedroom detached cottage blends period charm with everyday practicality. The house offers a generous kitchen/diner, living room with exposed beams and fireplace, plus a sun room that opens to colourful gardens and a garden studio — useful as a home office or hobby space.
The property is freehold, with garage and off-road parking and very low local crime, making it suitable for families seeking village life. Neighbourhood amenities include a primary school rated Good, a convenience shop, post office and village pub within easy reach.
Practical points to note: the home sits in a remoter rural community and broadband speeds are slow, so streaming or heavy home-working may need a solution. The house is an average overall size (approx. 990 sq ft) and will suit buyers wanting character with modest running and updating rather than a turnkey modern home.
With no flood risk and excellent mobile signal, the property is well placed for country living while remaining connected. For buyers who prioritise garden space, period features and village schools, this presents a rare, gently characterful opportunity.
3 bedroom detached house for sale in Combe St. Nicholas, Chard, Somerset, TA20 — £600,000 • 3 bed • 2 bath • 1597 ft²
3 bedroom detached house for sale in Combe Wood Lane, Combe St Nicholas, Chard, Somerset, TA20 — £450,000 • 3 bed • 2 bath • 1187 ft²
3 bedroom detached house for sale in High Street, Othery, Bridgwater, Somerset, TA7 — £300,000 • 3 bed • 2 bath
3 bedroom detached house for sale in Claycastle, Haselbury Plucknett, Crewkerne, TA18 — £450,000 • 3 bed • 2 bath • 1277 ft²
3 bedroom detached house for sale in Smallridge, Axminster, EX13 — £475,000 • 3 bed • 2 bath • 722 ft²
3 bedroom cottage for sale in High Street, Street, BA16 — £290,000 • 3 bed • 1 bath • 914 ft²














































































































































