**Standout Features:**
- Unique, impeccably refurbished detached house
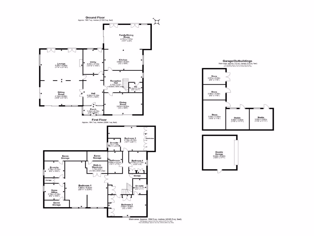
- Expansive 4,246 sq ft living space with four bedrooms and four bathrooms
- Situated on a picturesque 0.7-acre landscaped garden
- Extensive brick-built outbuildings, including stables, tack rooms, and ample storage
- Energy-efficient features with solar panels, significantly reducing running costs
- Excellent rural location, just 2.5 miles from Frodsham with panoramic views of the Welsh Hills
- Chain-free with a double garage and long driveway for parking
**Property Summary:**
Discover this unique and beautifully renovated detached house, nestled in a tranquil rural setting that offers a perfect balance of modern living and countryside charm. Encompassing over 4,200 sq ft, this spacious family home features a large, contemporary kitchen and elegantly appointed bathrooms, ensuring comfort and style. The expansive grounds are beautifully landscaped, and the property includes a range of substantial outbuildings - ideal for hobbyists or those needing additional storage.
Experience a homely feel in an open floor plan that seamlessly blends entertaining spaces with cozy nooks for relaxation. Each of the four bedrooms is generously sized, including a luxurious master suite boasting incredible views, built-in storage, and a private office space. Take advantage of outdoor living on the stone patio or explore the surrounding countryside with numerous walking trails at your doorstep.
Although the home enjoys a peaceful setting, Frodsham's vibrant community, rich with shops, cafes, and eateries, is merely a short drive away. With excellent schools nearby and easy access to major commuting routes and airports, this property perfectly caters to families or investors seeking a slice of idyllic countryside living.
Don't miss the opportunity to own this exclusive haven in the heart of the countryside—its combination of space, sophistication, and location makes it truly one-of-a-kind. Secure your visit today!
5 bedroom detached house for sale in Burrows Lane, Frodsham, WA6 — £969,995 • 5 bed • 3 bath • 2680 ft²
3 bedroom detached house for sale in Howey Lane, Frodsham WA6 6DP, WA6 — £695,000 • 3 bed • 2 bath • 2219 ft²
4 bedroom detached house for sale in Orchard Close, Frodsham, WA6 — £800,000 • 4 bed • 3 bath • 2623 ft²
2 bedroom detached house for sale in Top Road, Frodsham, WA6 — £430,000 • 2 bed • 1 bath • 1412 ft²
4 bedroom detached house for sale in Watery Lane, Bradley, Frodsham, Cheshire, WA6 — £900,000 • 4 bed • 2 bath • 1935 ft²
4 bedroom detached house for sale in Greenbank, Dunham On The Hill, Frodsham, WA6 — £700,000 • 4 bed • 3 bath • 2033 ft²


































































































































































































































