Contemporary two-bedroom home near Weymouth with low running costs and garden.
South-facing rear garden with full-width patio
Kitchen Craft units with integrated appliances included
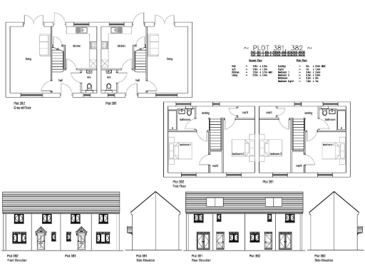
Two double bedrooms; approx. 840 sq ft total
Photo‑voltaic roof panels to reduce energy bills
Two side-by-side off-street parking spaces
10-year NHBC warranty; new-build construction
Annual site service charge £295 per year
Property under construction; broadband not yet assessed
This newly built two-bedroom semi-detached home at Curtis Fields offers modern, low-maintenance living about two miles from Weymouth town centre and harbourside. The layout includes an open-plan lounge with full-width patio doors onto a south-facing rear garden, and a contemporary Kitchen Craft kitchen supplied with integrated appliances. Photo-voltaic roof panels and mains gas central heating help reduce running costs.
Internally the house provides two double bedrooms, a family bathroom and a ground-floor cloakroom across approximately 840 sq ft. Carpets and LVT flooring are included, and the property is covered by a 10-year NHBC warranty. Two side-by-side off-street parking spaces sit directly in front of the house for daily convenience.
Buyers should note the property is currently under construction and ready for completion; photos are of a similar plot. There is an annual site service charge of £295 to cover communal maintenance. Broadband and some utility connections are not yet assessed, and surface-water flood risk is recorded as medium in the local assessment.
This home will suit first-time buyers or downsizers looking for a modern, energy-efficient property near the coast with low immediate maintenance and room to personalise once finished. Practical considerations to check pre-exchange include broadband readiness, council tax banding, and full covenant details for the development.
2 bedroom semi-detached house for sale in Plot 381 Curtis Fields, 5 Bramble Close, Weymouth, DT4 0FT, DT4 — £295,000 • 2 bed • 1 bath • 840 ft²
2 bedroom detached house for sale in Plot 301 Curtis Fields, 89 Curtis Way, Weymouth, DT4 0TS, DT4 — £320,000 • 2 bed • 1 bath • 840 ft²
2 bedroom detached house for sale in Plot 295 Curtis Fields, 4 Blossom Grove, Weymouth, DT4 0FS, DT4 — £320,000 • 2 bed • 1 bath • 840 ft²
2 bedroom end of terrace house for sale in Plot 405 Curtis Fields, 34 Bramble Road, Weymouth, DT4 0FT, DT4 — £300,000 • 2 bed • 1 bath • 856 ft²
2 bedroom semi-detached house for sale in 10 Little Francis Drive, Weymouth, DT4 0FP, DT4 — £300,000 • 2 bed • 1 bath • 840 ft²
2 bedroom semi-detached house for sale in Plot 297 Curtis Fields, 81 Curtis Fields, Weymouth, DT4 0TS, DT4 — £295,000 • 2 bed • 1 bath • 856 ft²


















































































