Bright period flat with private garden close to Highbury Barn amenities.
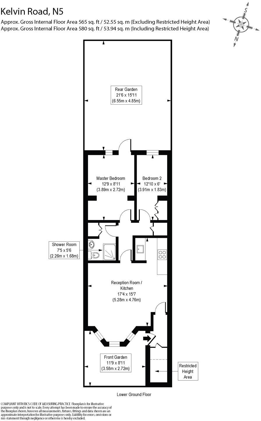
• Almost 580 sq ft two-bedroom lower/raised ground apartment
• Open-plan kitchen/living with bay windows and strong natural light
• Double bedroom with direct access to private rear garden
• Own front door — street-level access and separate entrance
• Leasehold with c.102 years remaining; ground rent £150 pa
• Service charge c.£4,500 pa (above-average) — factor into costs
• Solid-brick Victorian build; likely no wall insulation, energy upgrades possible
• Local crime levels above average; excellent transport and local amenities
Set within a Victorian terrace just off Highbury Fields, this two-bedroom lower/raised ground apartment combines period charm with a private rear garden and direct street access. The open-plan kitchen/reception at the front benefits from bay windows and strong natural light, making the main living space bright and welcoming. The double bedroom opens directly onto the well-kept garden — a rare outside space for central-London flats.
At c.580 sq ft the layout is compact but practical for couples or a small family; rooms are typical central-London sizes with high ceilings in parts and solid brick construction. The property is well placed for the cafés, food shops and transport around Highbury Barn, with Highbury & Islington and Arsenal stations within easy reach.
Buyers should note the apartment is leasehold (c.102 years remaining) with above-average service charges and a small ground rent: these running costs are material and should be checked. The building dates from the early 20th century and has solid-brick walls with no known cavity insulation — there may be scope and cost for energy improvements. The local area records higher crime levels and pockets of deprivation, balanced by strong local amenities and excellent digital connectivity.
This home suits buyers seeking a light, characterful period conversion with outdoor space close to green areas and shops. It offers immediate comfort and clear potential for targeted refurbishment to improve energy performance and personalise interiors, but purchasers should factor in ongoing service charges and typical maintenance for an older brick terrace.
2 bedroom apartment for sale in Melgund Road, London, N5 — £650,000 • 2 bed • 1 bath • 593 ft²
2 bedroom flat for sale in Northolme Road, London, N5 — £1,100,000 • 2 bed • 1 bath • 899 ft²
1 bedroom apartment for sale in Kelvin Road, London, N5 — £360,000 • 1 bed • 1 bath • 500 ft²
2 bedroom apartment for sale in Highbury Hill, London, N5 — £900,000 • 2 bed • 1 bath • 1080 ft²
3 bedroom maisonette for sale in Aberdeen Road, London, N5 — £1,000,000 • 3 bed • 1 bath • 1075 ft²
1 bedroom apartment for sale in Beresford Road, London, N5 — £565,000 • 1 bed • 1 bath • 478 ft²


























































