Spacious garden and garage in a sought-after Hucclecote location.
100ft south-facing rear garden with greenhouse and kitchen-plot
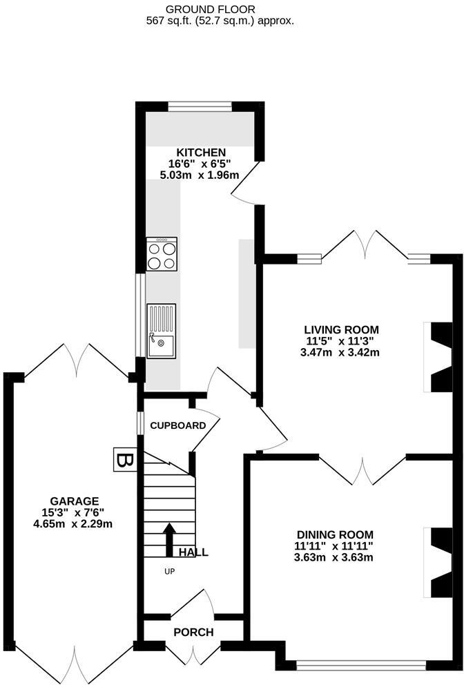
Set in popular Hucclecote, this three-bedroom semi-detached home offers family-friendly living with a rare 100ft south-facing garden. The house combines period character with useful modern comforts — double glazing, a gas central-heated combi boiler, a log burner in the living room and a fitted kitchen with space for appliances. The long rear garden, greenhouse and kitchen-plot area create excellent outdoor space for children, pets and growing your own.
Internally the layout is traditional and practical: living room with French doors to the garden, a separate dining room, and three first-floor bedrooms served by a large shower room. Off-street parking and a single garage with power and lighting add secure storage and useful workshop potential. Broadband and mobile coverage are strong and local schools and transport links are within easy reach.
Buyers should note the property’s practical limitations: the EPC is D63 and cavity walls are assumed to have no added insulation, so further insulation work could be needed to improve energy performance. There is one shower room (no separate bath) and the house is of average overall size, so families wanting more internal living/wet-room space should consider this. The loft is part-boarded, offering limited but usable storage and possible future attic conversion subject to checks.
This home suits growing families seeking established suburb convenience, outdoor space and good schooling nearby. It also offers scope for energy improvements and cosmetic updating to personalise and add value.
3 bedroom semi-detached house for sale in Dinglewell, Hucclecote, Gloucester, GL3 — £375,000 • 3 bed • 1 bath • 1100 ft²
3 bedroom detached house for sale in Lynmouth Road, Hucclecote, Gloucester, GL3 — £410,000 • 3 bed • 1 bath • 1583 ft²
3 bedroom semi-detached house for sale in Elmgrove Road, Hucclecote, Gloucester, GL3 — £300,000 • 3 bed • 1 bath • 1228 ft²
3 bedroom detached house for sale in Dinglewell, Hucclecote, Gloucester, GL3 — £425,000 • 3 bed • 1 bath • 851 ft²
3 bedroom semi-detached house for sale in Elmgrove Road, Hucclecote, GL3 — £315,000 • 3 bed • 1 bath • 944 ft²
4 bedroom semi-detached house for sale in Dinglewell, Hucclecote, GL3 — £425,000 • 4 bed • 2 bath • 1479 ft²


































































