Large private plot with garage and excellent local schools nearby.
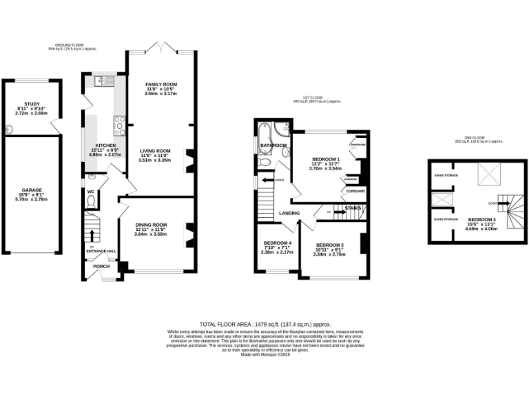
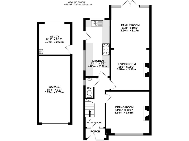
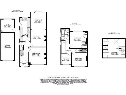
Chain-free four-bedroom semi with loft-conversion fourth bedroom
Large private rear garden approaching 0.16 acre, split patio and lawn
Garage with power and lighting plus driveway parking for one to two cars
Dedicated study/home office with rear garden access
Well-presented interiors but kitchen and bathrooms are traditional
Double glazing installed before 2002; may benefit from upgrade
EPC rating D66 and council tax band C (£1990.01 pa 2025/26)
Set on a generous plot approaching 0.16 of an acre, this chain-free four-bedroom semi offers adaptable family living and useful outbuildings. A converted loft provides a fourth bedroom, while ground-floor reception rooms and a dedicated study suit home-working and family life. The garage with power and lighting plus driveway parking add practical convenience.
The rear garden is a major asset: split into patio, formal beds and a large lawn, it’s private and ready for outdoor entertaining, play or gardening projects. Internally the home is well presented and tidy throughout, but certain elements—kitchen and bathrooms—are traditional and offer scope for modernisation to add value.
Practical details are straightforward: freehold tenure, mains services, gas central heating and double glazing (pre-2002). EPC D66 and council tax band C are factual considerations for running costs. For families this location is strong — good local primary schools, secondary options and regular bus and road links to Gloucester and the M5.
In short, this property suits a family seeking generous outside space and versatile accommodation with potential to personalise. Buyers looking for a turnkey modern energy performance should factor in the EPC rating and older glazing when budgeting.
3 bedroom detached house for sale in Lynmouth Road, Hucclecote, Gloucester, GL3 — £410,000 • 3 bed • 1 bath • 1583 ft²
3 bedroom semi-detached house for sale in Elmgrove Road, Hucclecote, Gloucester, GL3 — £300,000 • 3 bed • 1 bath • 1228 ft²
3 bedroom semi-detached house for sale in Dinglewell, Hucclecote, Gloucester, GL3 — £375,000 • 3 bed • 1 bath • 969 ft²
3 bedroom semi-detached house for sale in Dinglewell, Hucclecote, Gloucester, GL3 — £365,000 • 3 bed • 1 bath • 1100 ft²
4 bedroom end of terrace house for sale in Hucclecote Road, Gloucester, Gloucestershire, GL3 — £325,000 • 4 bed • 1 bath • 1148 ft²
4 bedroom detached house for sale in Stocken Close, Hucclecote, GL3 — £430,000 • 4 bed • 3 bath • 1393 ft²






























































































