Conversion-led redevelopment opportunity close to Newark with village amenities nearby.
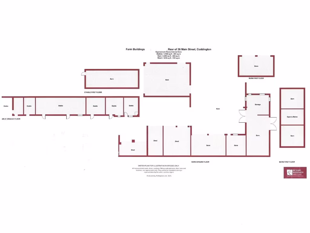
Approximately 7,879 sq ft of traditional outbuildings
Site area c.900 sq m (0.22 acre)
Red brick barn, stables, loose boxes and hay store included
Mains water and electricity believed available (buyer to verify)
Buildings in fair–poor condition; timber/weathering and brick repairs needed
Limited external amenity land beyond yard and footprints
Development or conversion subject to Planning Permission (no consent in place)
Freehold sale; Newark town centre ~2 miles
A collection of traditional red-brick and timber farm buildings arranged around a central yard in Coddington, about 2 miles east of Newark. The site extends to approximately 900 sq. m (0.22 acre) with c.7,879 sq. ft of existing outbuildings, including a large barn, stables, loose boxes, hay store and steel-framed livestock shed. Mains water and electricity are understood to be available; purchasers should verify connections.
The buildings are largely agricultural in character and currently in fair to poor condition: visible timber weathering, areas of brick repointing required and general repair and modernization needed throughout. There is limited amenity/garden land beyond the immediate yard and building footprints, so value will depend on a conversion or redevelopment scheme that makes efficient use of the existing structures and site area.
This is a development-led opportunity for an investor, small developer or owner-occupier with planning appetite. The site is sold freehold and would require planning permission for change of use or new-build; no permissions are included. Consider costs for structural repair, refurbishment, drainage/sewer connections and any demolition or rebuilding work when assessing feasibility.
Nearby village facilities include a primary school, pub, community centre and bus links; Newark town centre is approximately two miles away for broader services. Vacant possession will be given on completion.
Land for sale in A616 Ollerton Road, Little Carlton, NG23 — £80,000 • 1 bed • 1 bath • 1076 ft²
4 bedroom barn conversion for sale in Detached Barn With Planning Permission, Low Road, Besthorpe, Newark, NG23 — £350,000 • 4 bed • 3 bath • 3650 ft²
Equestrian facility for sale in Old Hall Close, Farndon, Newark, Nottinghamshire, NG24 — £1,750,000 • 10 bed • 6 bath • 5804 ft²
Land for sale in Land At Moorhouse, Newark, Nottinghamshire, NG23 — £430,000 • 1 bed • 1 bath
3 bedroom detached house for sale in Beacon Hill Road, Newark, NG24 — £725,000 • 3 bed • 1 bath • 1013 ft²
House for sale in The Dutch Barn, Church Farm, Main Street, South Scarle, Newark, Nottinghamshire, NG23 7JH, NG23 — £300,000 • 1 bed • 1 bath • 4000 ft²














































