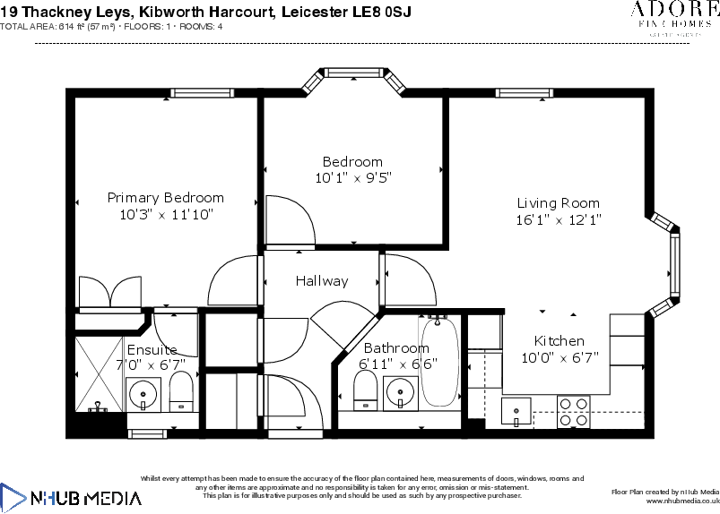
**Standout Features:**
- 40% Shared Ownership
- Ground floor, two double bedrooms
- No forward chain (quick move-in potential)
- Generous open plan lounge/diner/kitchen
- Master bedroom with ensuite shower and family bathroom
- Integral garage for secure parking
- Located in the favored Kibworth Meadows development
This well-appointed ground floor apartment offers a fantastic opportunity for families or first-time buyers looking to settle in the serene Kibworth Meadows development. With two spacious double bedrooms, including a master with an ensuite, this property melds comfort with functionality. The open plan lounge and kitchen area is perfect for entertaining, with a delightful bay window flooding the space with natural light.
Although the property is sold on a 40% shared ownership basis, it presents excellent value with a manageable monthly rent of £314.74 and a low service charge of £120.28. With 109 years remaining on the lease and staircasing options available, this home opens doors for future investment or equity growth.
Kibworth Harcourt is renowned for its family-friendly amenities, boasting outstanding local schools and recreational facilities. The community offers parks, shops, and eateries within easy reach, ensuring a balanced lifestyle. Don’t miss the chance to make this enticing apartment your own—book a viewing now to experience comfortable living in a peaceful setting!
2 bedroom end of terrace house for sale in 74 Longbreach Road, Kibworth.LE8 — £98,000 • 2 bed • 1 bath • 640 ft²
2 bedroom apartment for sale in Thackney Leys, Kibworth, LE8 — £160,000 • 2 bed • 2 bath • 614 ft²
2 bedroom coach house for sale in Dairy Way, Kibworth, LE8 — £55,500 • 2 bed • 1 bath • 1036 ft²
2 bedroom terraced house for sale in Lapwing Lane, Kibworth Beauchamp, Leicester, LE8 — £180,000 • 2 bed • 1 bath • 769 ft²
2 bedroom terraced house for sale in Lapwing Lane, Kibworth Beauchamp, Leicester, LE8 — £62,500 • 2 bed • 1 bath • 542 ft²
3 bedroom town house for sale in Wagtail Avenue, Kibworth Beauchamp, Leicester, LE8 — £75,000 • 3 bed • 1 bath • 908 ft²






















































