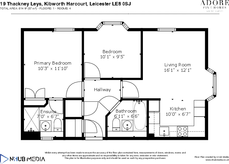
**Standout Features:**
- Stylish two double bedroom ground floor apartment
- Spacious open plan lounge/diner with modern fitted kitchen
- Master bedroom with ensuite shower
- Additional family bathroom
- Integrated garage and private garden
- No chain (move in without delay)
- Leasehold with 109 years remaining
- Located in the favored Kibworth Meadows development
- Very low crime rate and excellent broadband
Ideal for families or first-time buyers, this beautifully presented apartment in Kibworth Meadows blends comfort with convenience. The generous open-plan lounge and dining area, accentuated by a charming bay window, seamlessly connects to a modern kitchen—offering an inviting space for family living and entertaining. You’ll appreciate the two spacious double bedrooms, including a master suite with an ensuite shower, complemented by a family bathroom for guests and family alike.
Situated in a quiet, affluent area, enjoy access to excellent local amenities such as parks, shops, and sports clubs, along with outstanding schools like Kibworth Primary and Kibworth High. The area’s connectivity to Leicester and Market Harborough makes commuting a breeze, with transport options including nearby train services.
Outside, the property features an integral garage and a private garden, perfect for relaxing or entertaining. With no forward chain, this apartment is ready for you to make it your own—seize the opportunity before it's gone! Embrace a tranquil lifestyle in a thriving community.
2 bedroom apartment for sale in Thackney Leys, Kibworth, LE8 — £64,000 • 2 bed • 2 bath • 614 ft²
1 bedroom apartment for sale in Rose Yard, Kibworth Harcourt, LE8 — £180,000 • 1 bed • 1 bath • 614 ft²
3 bedroom duplex for sale in 16 Home Close, Kibworth, LE8 — £175,000 • 3 bed • 1 bath • 1031 ft²
4 bedroom detached house for sale in Barnards Way ,Kibworth LE8 — £435,000 • 4 bed • 2 bath • 1324 ft²
2 bedroom apartment for sale in Rose Yard, Kibworth Harcourt, LE8 — £215,000 • 2 bed • 2 bath • 854 ft²
2 bedroom end of terrace house for sale in 74 Longbreach Road, LE8 0SR, LE8 — £255,000 • 2 bed • 1 bath • 640 ft²










































