Ready-to-move-in three-bed home with landscaped garden and driveway.
Three bedrooms with en-suite to main bedroom and family bathroom
Modern kitchen/dining with French doors to landscaped garden
Dual-aspect main lounge providing strong natural light
Driveway parking and decent plot; off-street parking available
Freehold tenure and no onward chain for quicker completion
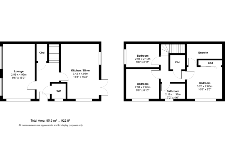
Approx. 922 sq ft — average overall size, not a large family home
Local secondary options mixed; one nearby secondary rated Inadequate
No flood risk; broadband fast and mobile signal excellent
This three-bedroom semi-detached home on Mill Race Close offers a straightforward, ready-to-move-in layout in a popular Burscough development. The ground floor features a dual-aspect main lounge, modern kitchen/dining space with French doors to the landscaped garden, and a convenient WC. Upstairs are three bedrooms, including a main bedroom with fitted wardrobes and an en-suite, plus a family bathroom.
Practical strengths include driveway parking, a decent plot, freehold tenure and no onward chain, making completion simpler for buyers. The property sits in a thriving village with fast broadband, excellent mobile signal, good local shops, pubs and canal walks — ideal for everyday family life and commuting via nearby train stations.
Buyers should note the house is average in overall size (approximately 922 sq ft) and sits in an area with generally good amenities but mixed secondary school performance locally (one nearby secondary rated Inadequate). Crime levels are average. There are no reported flood risks and council tax is affordable, but this is not a large family home if you need significantly more living space.
Overall, the house suits first-time buyers or growing families seeking a low-maintenance, modern home in an affluent, village setting. Viewings are recommended to appreciate the internal layout, landscaped garden and the convenience of a chain-free sale.
3 bedroom semi-detached house for sale in High Grove Park, Ormskirk, Lancashire, L40 — £250,000 • 3 bed • 2 bath • 867 ft²
3 bedroom semi-detached house for sale in Lordsgate Lane, Burscough L40 — £280,000 • 3 bed • 1 bath • 923 ft²
3 bedroom semi-detached house for sale in Croft Avenue, Burscough, L40 — £265,000 • 3 bed • 1 bath • 1043 ft²
3 bedroom semi-detached house for sale in Lordsgate Lane, Burscough, L40 — £250,000 • 3 bed • 1 bath • 915 ft²
3 bedroom semi-detached house for sale in Mill Race Close, Burscough, L40 7BG, L40 — £270,000 • 3 bed • 1 bath • 895 ft²
3 bedroom semi-detached house for sale in Mere Avenue, Burscough L40 — £250,000 • 3 bed • 1 bath • 770 ft²






























































