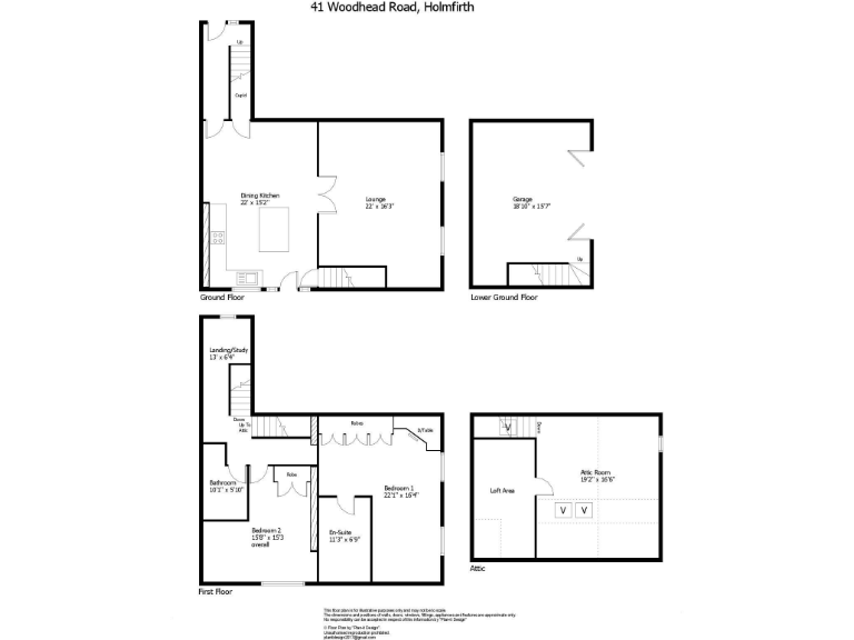
**Standout Features:**
- Unique converted barn with rustic charm
- Spacious accommodation spanning 1,884 sq ft
- Large lounge and integrated dining kitchen
- 2 double bedrooms, en-suite, and attic room
- Integral garage/workshop for 2 vehicles
- Close to amenities in Holmfirth
- Enclosed courtyard and rear garden space
**Notable Concerns:**
- Requires further renovations to reach full potential
- Dated decor and some maintenance needed
- Above average crime rate in the area
Nestled in the heart of Holmfirth, this captivating converted barn seamlessly combines rustic elegance with spacious living. Priced at £365,000, this mid-terrace property features a large lounge, an expansive dining kitchen, two generously sized double bedrooms including an en-suite, and a unique attic room with charming exposed roof trusses. The dual outdoor spaces enhance its appeal, providing perfect spots for relaxation amidst beautiful countryside views.
While the property boasts modern kitchen fittings and uPVC double glazing, a touch of your personal style is needed to transform this home into your dream retreat. The integral garage/workshop presents a fantastic opportunity for hobby enthusiasts or additional storage. Families will appreciate the proximity to well-regarded schools and convenient access to local amenities, making it both a comfortable residence and an investment with future potential. Don’t miss this chance to create your perfect home in a desirable location!
4 bedroom detached house for sale in Hollin Brigg Lane, Holmbridge, Holmfirth, HD9 — £925,000 • 4 bed • 2 bath • 2167 ft²
4 bedroom house for sale in Seventy Acre Farm, Meltham Road, Honley, Holmfirth, HD9 — £690,000 • 4 bed • 3 bath • 2122 ft²
4 bedroom house for sale in Seventy Acre Farn, Meltham Road, Honley, Holmfirth, HD9 — £865,000 • 4 bed • 3 bath • 2554 ft²
3 bedroom cottage for sale in The Barn, Hall Ing Lane, Honley HD9 — £325,000 • 3 bed • 2 bath • 1100 ft²
2 bedroom cottage for sale in Far End Lane, Honley, Holmfirth, HD9 — £280,000 • 2 bed • 2 bath • 807 ft²
3 bedroom detached house for sale in The Barn, Off Cliff Road & New Laithe Lane, Holmfirth, HD9 — £780,000 • 3 bed • 2 bath • 1539 ft²






















































































