**Standout Features:**
- Modern four-bedroom detached home in a sought-after South Wootton location.
- Spacious living/dining room with patio doors leading to a private rear garden.
- En-suite bathroom attached to the principal bedroom.
- Extended garage providing excellent storage or workshop potential.
- Off-road parking and a good-sized rear garden, perfect for outdoor family activities.
- Chain-free, offering a hassle-free purchase experience.
**Potential Considerations:**
- Kitchen and some interior spaces may require modernization to suit contemporary tastes.
- Average broadband speed might be a concern for those who rely heavily on fast internet.
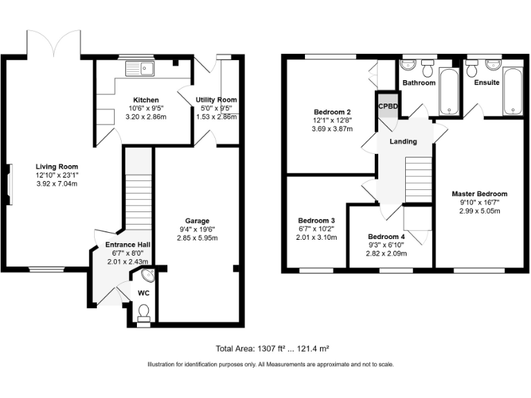
Located in the desirable South Wootton area of King’s Lynn, 56 Ullswater Avenue is a fantastic detached four-bedroom home ideal for families seeking comfort and space. The property features a well-designed ground floor with an inviting entrance hall, a generous open-plan living/dining area that flows into a fitted kitchen and utility room, offering easy access to a private garden—a perfect blend of indoor and outdoor living. Upstairs, you will find four spacious bedrooms, including a principal suite with an en-suite bathroom, as well as a family bathroom for added convenience.
This property excels in offering a secure and quiet suburban environment, complemented by off-road parking and an extended garage that meets varied storage needs. The surrounding area boasts low crime rates and proximity to reputable schools, making it an excellent choice for families. With a good-sized garden ready for personal touches, the potential for future renovations enhances its appeal. Don’t miss this opportunity for a family home in a prized location—schedule a viewing today and envision your future in this wonderful space!
4 bedroom detached house for sale in Ullswater Avenue, South Wootton, King's Lynn, PE30 — £500,000 • 4 bed • 2 bath • 2013 ft²
4 bedroom detached house for sale in Deas Road, South Wootton, King's Lynn, PE30 — £375,000 • 4 bed • 2 bath • 1260 ft²
4 bedroom detached house for sale in South Wootton, PE30 — £415,000 • 4 bed • 2 bath • 1699 ft²
4 bedroom detached house for sale in Furness Close, South Wootton, King's Lynn, PE30 — £325,000 • 4 bed • 2 bath • 1088 ft²
4 bedroom detached house for sale in NORTH WOOTTON - Detached 4 Bed House in Sought After Location, PE30 — £619,995 • 4 bed • 2 bath • 2600 ft²
3 bedroom detached house for sale in Rushmead Close, South Wootton, King's Lynn, Norfolk, PE30 — £365,000 • 3 bed • 2 bath • 1243 ft²






























































