Chain-free family home near Watford Junction with period charm and refurbishment potential.
Three bedrooms and two reception rooms, c.905 sq ft
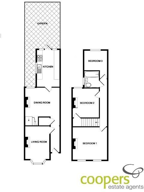
This Victorian red-brick end-of-terrace offers three bedrooms, two reception rooms and a large fitted kitchen across c.905 sq ft. The home retains period character including a bay window, high ceilings and timber-style sash windows, while double glazing and a C EPC provide reasonable energy performance. Its freehold, chain-free status and proximity to Watford Junction make it a straightforward purchase for commuters or investors.
Internally the layout suits a growing family or first-time buyer seeking scope to personalise. The reception rooms feel bright and the rear garden is low-maintenance, good for children or entertaining. There is one family bathroom off the landing; adding a second bathroom or en-suite would improve long-term resale or rental value.
Notable practical points: the property dates from 1900–1929 and has solid brick walls (no known insulation), so further insulation and modernisation could be required. On-street parking only, the plot is small, and the local area records higher crime levels, which may concern some buyers. Overall this is a largely average-sized period home with clear potential for value uplift through sympathetic refurbishment and improved insulation.
3 bedroom terraced house for sale in Bruce Grove, Watford, WD24 — £499,950 • 3 bed • 1 bath • 906 ft²
3 bedroom terraced house for sale in Bruce Grove, Watford WD24 4DZ, WD24 — £520,000 • 3 bed • 2 bath • 1068 ft²
3 bedroom terraced house for sale in Sotheron Road, Central Watford, WD17 — £400,000 • 3 bed • 1 bath • 786 ft²
3 bedroom terraced house for sale in Estcourt Road, Watford, Hertfordshire, WD17 — £450,000 • 3 bed • 1 bath • 951 ft²
3 bedroom terraced house for sale in Copsewood, Watford, WD24 — £435,000 • 3 bed • 1 bath • 970 ft²
3 bedroom end of terrace house for sale in Whippendell Road, Watford, WD18 — £475,000 • 3 bed • 1 bath • 959 ft²


































