Bright two-bedroom flat near Earls Court and Gloucester Road transport and amenities.
Private entrance and access to communal gardens
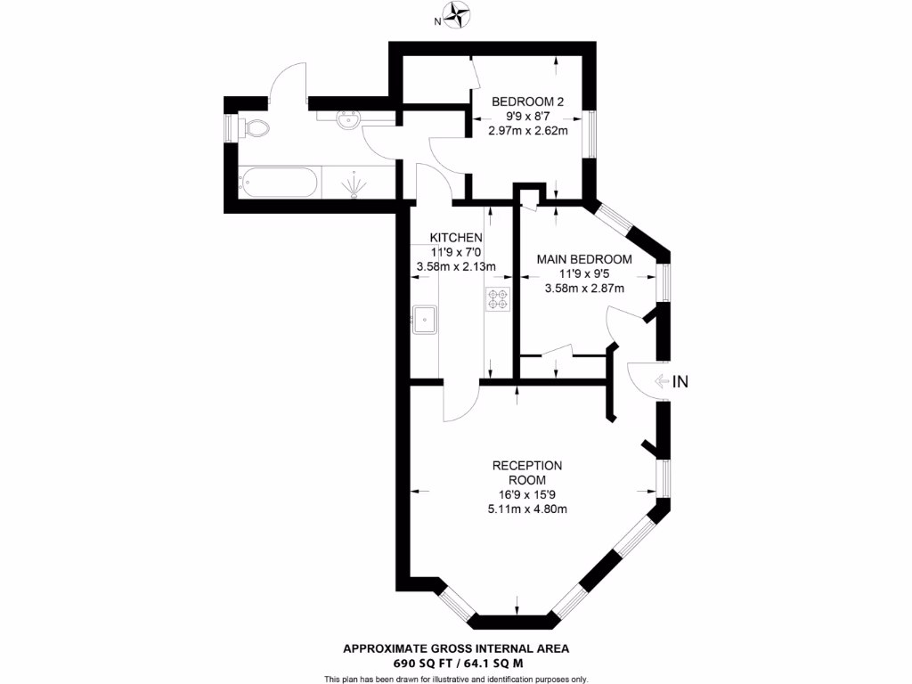
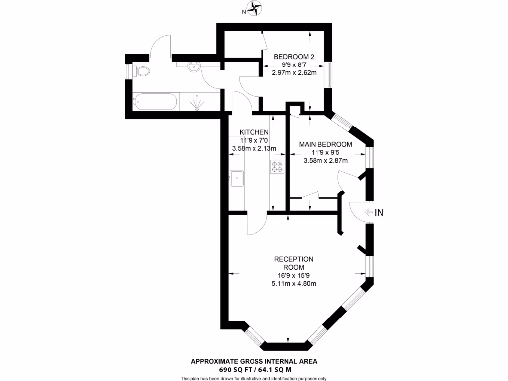
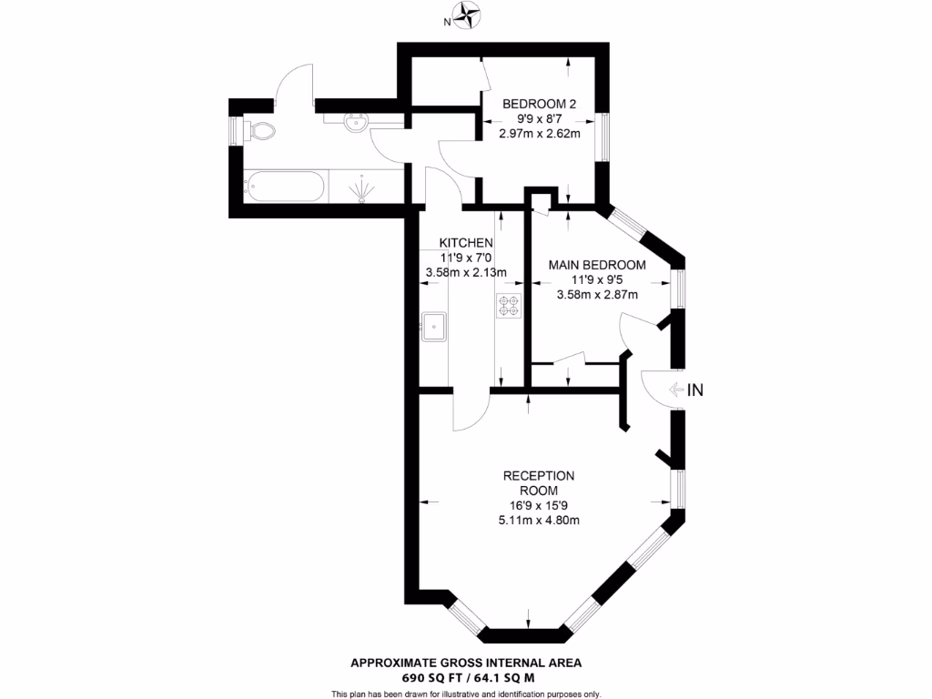
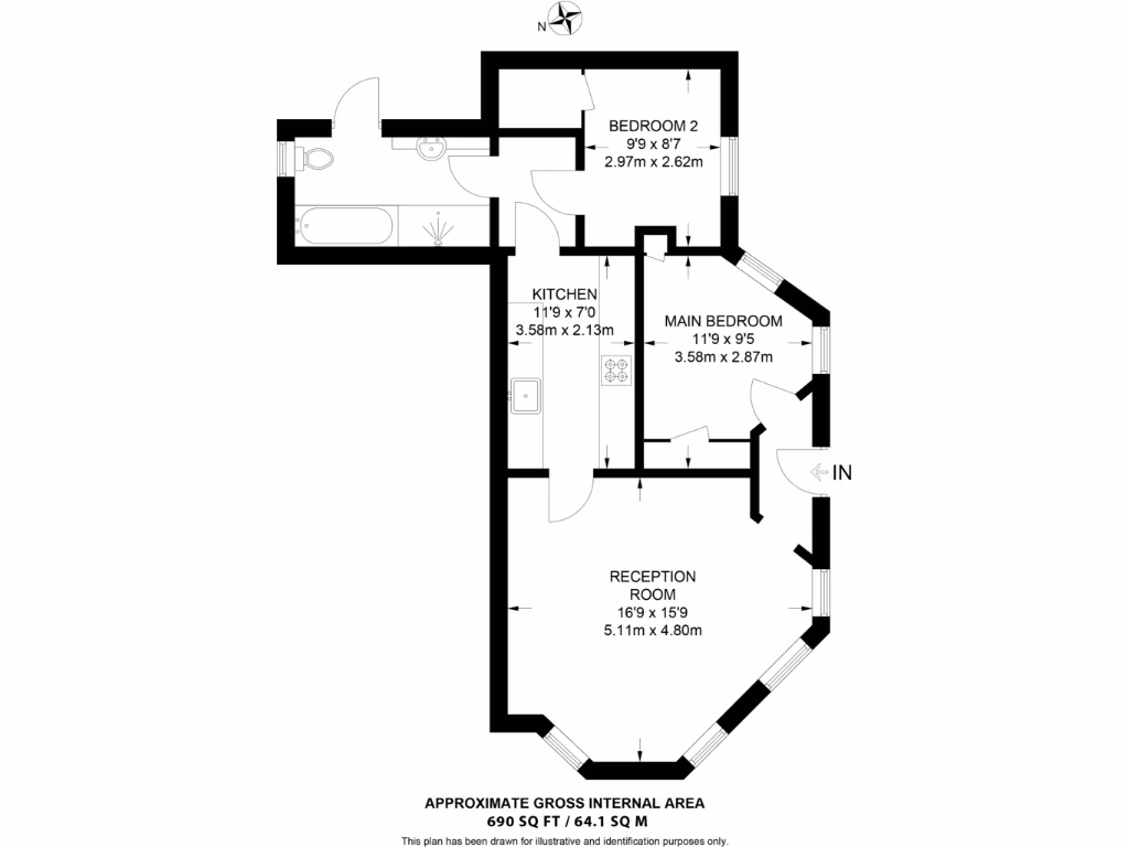
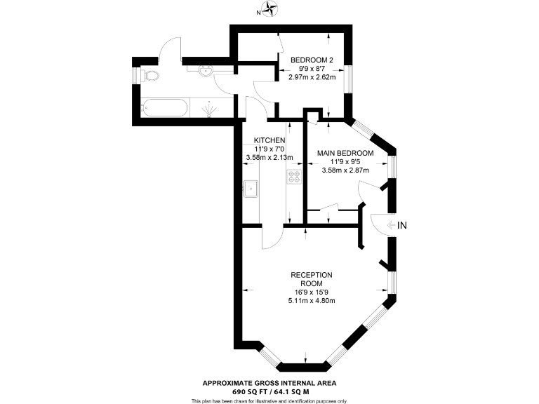
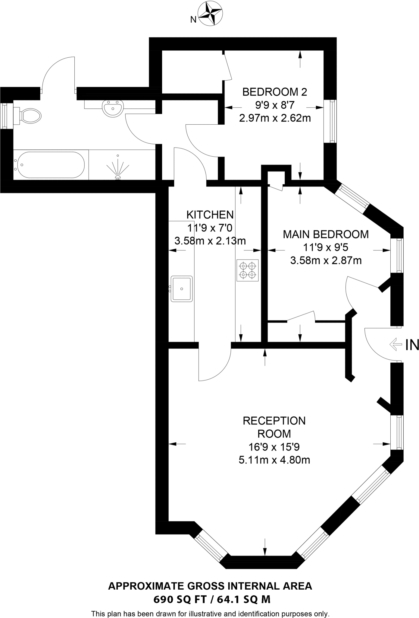
Set within a prestigious red-brick mansion block, this two-bedroom flat offers generous rooms, its own private entrance and access to attractive communal gardens. The apartment feels bright and spacious with a large reception room suitable for dining and entertaining, plus a modern, well-equipped kitchen and contemporary fixtures throughout.
Practical strengths include double glazing throughout (secondary glazing on bedrooms), gas-fired central heating, a very long lease (979 years) and share of freehold ownership. At approximately 690 sq ft, the flat suits buyers seeking a comfortable central London home or a buy-to-let close to Earls Court and Gloucester Road amenities.
Notable considerations are the above-average service charge (£7,500) and the building’s solid brick construction with assumed lack of insulation. The block dates from 1900–1929, so future maintenance and communal costs should be factored into running costs. The property will be sold at auction, and prior-auction purchase is available.
Location strengths include excellent transport links, fast broadband and strong local schools nearby. Prospective buyers should also note the local crime level is recorded as very high — sensible security and insurance checks are recommended before purchase.
2 bedroom flat for sale in Kensington Mansions, Trebovir Road, London, SW5 — £525,000 • 2 bed • 1 bath • 690 ft²
2 bedroom flat for sale in Nevern Square, Earls Court, London, SW5 — £1,300,000 • 2 bed • 2 bath • 1098 ft²
2 bedroom flat for sale in Cornwall Gardens, South Kensington, London, SW7 — £1,000,000 • 2 bed • 2 bath • 841 ft²
2 bedroom flat for sale in Onslow Gardens, South Kensington, London, SW7 — £1,000,000 • 2 bed • 1 bath • 648 ft²
2 bedroom flat for sale in Cornwall Gardens, London, SW7 — £1,000,000 • 2 bed • 2 bath • 812 ft²
2 bedroom flat for sale in Cromwell Crescent, Kensington, London, SW5 — £1,125,000 • 2 bed • 2 bath • 960 ft²






























































































































































































































































































































































































































































































